Vuokrataan varastotilat - Vantaa
Pavintie 2, Itä-Hakkila, 01260 Vantaa #10809678
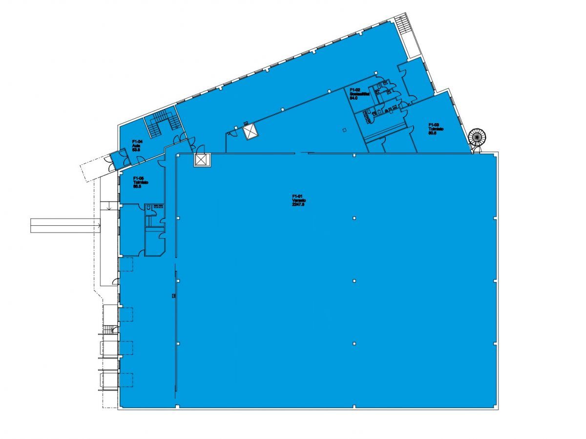
Vuokrattavana on korkeaa varasto- ja tuotantotilaa, jossa on erinomaiset lastausmahdollisuudet ja toimiva tilava piha. Varaston pinta-ala on noin 2275m2. Varastoon on lastauslaituri, sekä kaksi lastaustaskua.
Rakennuksen toisesta kerroksesta löytyy valoisaa ja muunneltavaa toimistotilaa(noin 796m2), jota voidaan räätälöidä erilaisten käyttäjien tarpeisiin. Lisäksi kellarikerroksesta saatavilla lisätilaa(583m2). Tämä kohde soveltuu erityisen hyvin vuokralaiselle, joka haluaa toimintansa tehokkaasti saman katon alle. Tilat ovat remontoitavissa käyttäjän toiveiden mukaisesti sopivan vuokralaisen löytyessä.
Pavintie 2 Vantaan Hakkilassa, tarjoaa sujuvat liikenneyhteydet Lahdenväylälle (E75) ja Kehä III. Sijainti mahdollistaa vaivattoman pääsyn kaikille pääväylille, Helsinki-Vantaan lentoasemalle sekä Vuosaaren satamaan.
Lisätietoja soita 020 730 4530 tai info@repoint.fi. Palvelumme on tilanhakijalle ilmainen.
Repoint Toimitilat Oy
Itälahdenkatu 22 B, 00210 Helsinki
Näytä puhelinnumero
020 730 4530
Lisätietoja soita Näytä puhelinnumero 020 730 4530 tai info@repoint.fi
https://repoint.fi/