Vuokrataan liiketilat - Helsinki
Kaivotalo, Mannerheimintie 3, Keskusta, 00100 Helsinki #10809658
Siisti ja moderni 1070 m² liiketila, keskeiseltä sijainnilta Kaivotalossa.
Osoite
Mannerheimintie 3, 00100 Helsinki
Tilatyyppi
Liiketilaa
1070 m2
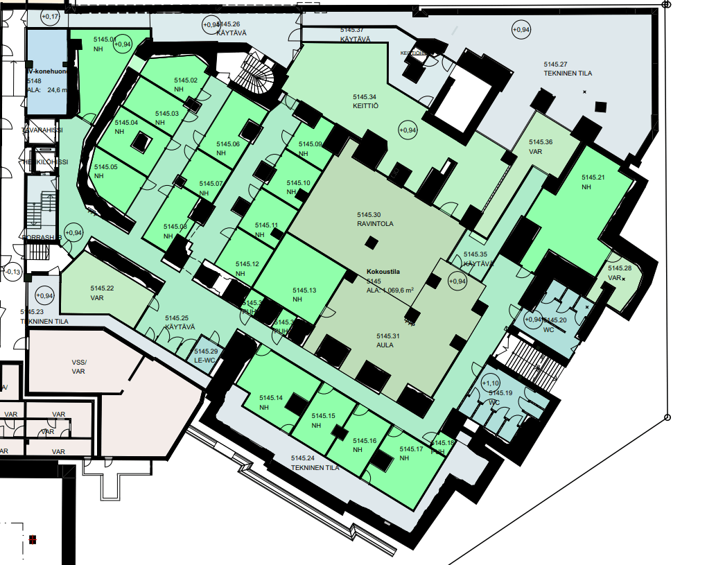
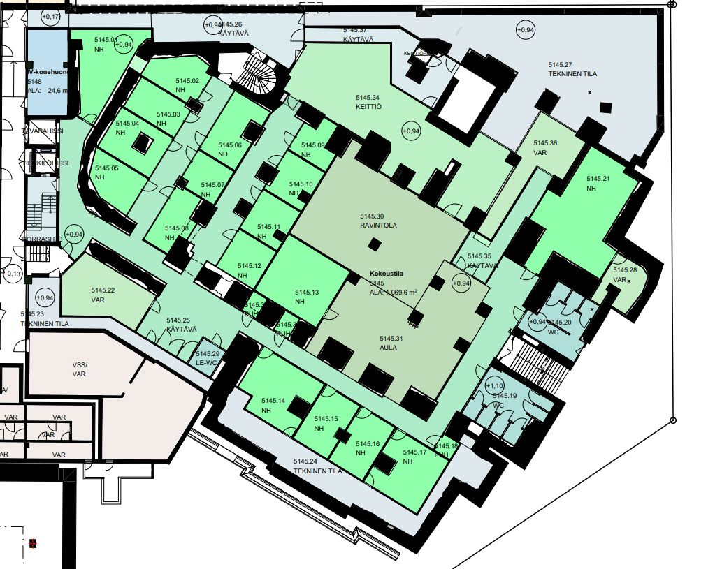
Pohjapiirros
Kiinteistö
Kaivopihalla on vuokrattavana upea ja monikäyttöinen liiketila, joka koostuu useista huoneista. Tila sijaitsee aivan keskellä Kaivopihaa, joten tilava ja monipuolinen kokonaisuus sopii loistavasti erilaisten liiketoimintojen tarpeisiin.
Arkkitehti Pauli Salomaan suunnittelema Kaivotalo valmistui tyylisuuntansa malliesimerkiksi vuonna 1955. Kaivotalon ensimmäisessä ja toisessa kerroksessa sijaitsee liiketiloja, ylemmät kerrokset toimivat toimistotiloina.
Kulkuyhteydet rakennukseen ovat Helsingin parhaat ja alueen palvelut loistavat.
Arkkitehti Pauli Salomaan suunnittelema Kaivotalo valmistui tyylisuuntansa malliesimerkiksi vuonna 1955. Kaivotalon ensimmäisessä ja toisessa kerroksessa sijaitsee liiketiloja, ylemmät kerrokset toimivat toimistotiloina.
Kulkuyhteydet rakennukseen ovat Helsingin parhaat ja alueen palvelut loistavat.
Vapautuu
Heti
Rakennusvuosi
1955
Kerros
-1
Energiatehokkuusluokka
Ei lain edellyttämää energiatodistusta
Näkyvällä paikalla
Ota yhteyttä
ScanReal Oy LKV
Opus Business Park
Hitsaajankatu 24
00810 Helsinki
info@scanreal.fi
Puh:
Näytä puhelinnumero
020 730 8830
Sopivat toimitilat yhdellä otolla!
Kartoitamme toimitilatarpeesi ja etsimme yrityksellesi parhaiten sopivat vapaat toimitilat. Koska vuokranantajat maksavat palvelumme, on tämä yrityksellesi veloituksetonta.
OTA YHTEYTTÄ - SOVI NÄYTTÖ!
Kaikki kohteemme eivät ole netissä, kerro tilatarpeesi niin kartoitamme vaihtoehdot.
Palvelumme on tilanhakijalle ilmainen
Pyydä lisätietoa
