Vuokrataan liiketilat - Helsinki
Merikortteli, Pursimiehenkatu 29-31, Punavuori, 00150 Helsinki #10809654
Ainutlaatuinen 114,5 m² toisen kerroksen toimitila tunnelmallisessa Merikorttelissa.
Osoite
Pursimiehenkatu 29-31, 00150 Helsinki
Tilatyyppi
Liiketilaa
114,5 m2
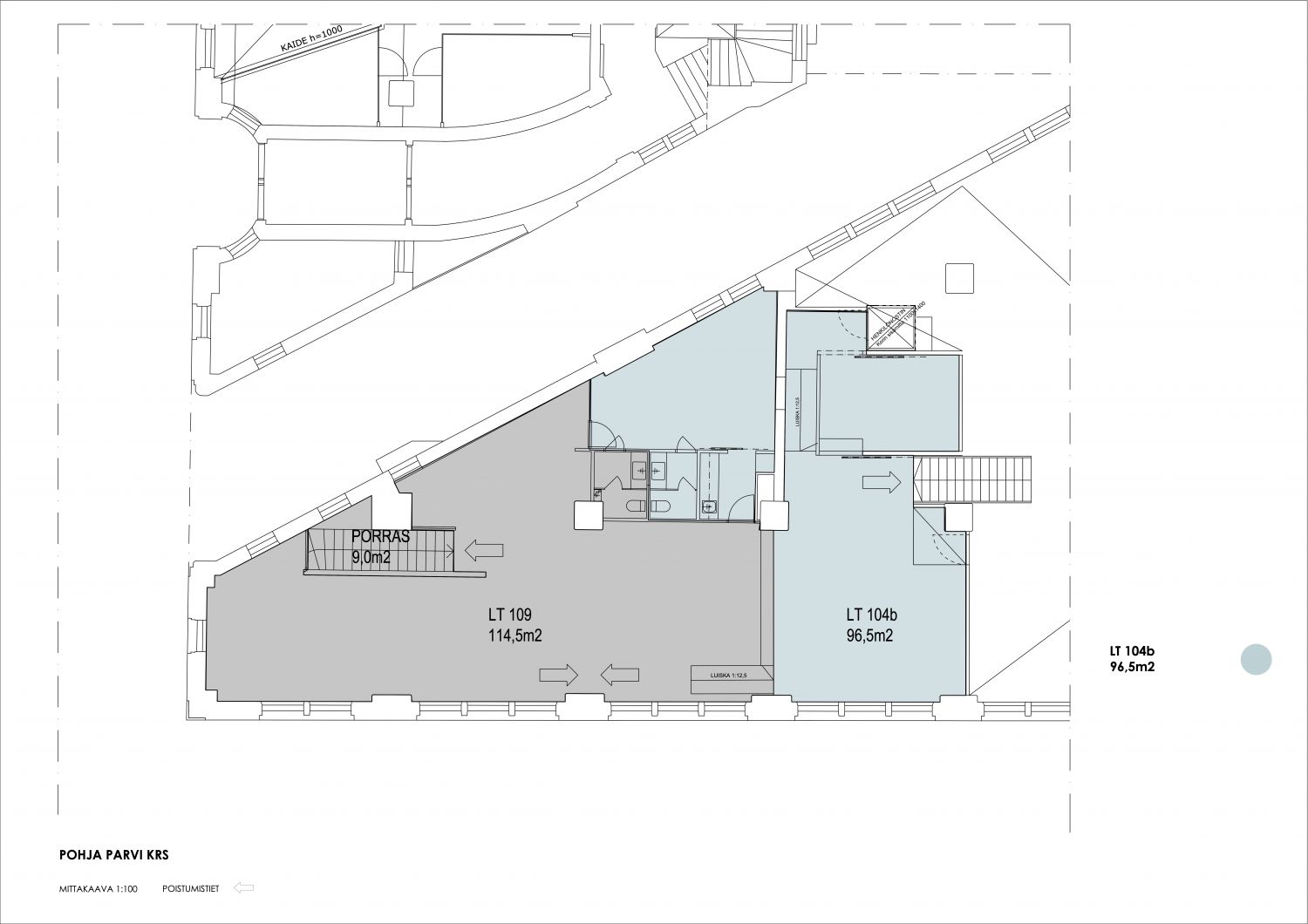
Pohjapiirros
Kiinteistö
114,5 m² toisen kerroksen tilaan on omat portaat suoraan kadulta ja sijaitsee Bob's Laundryn yläkerrassa. Tilaan etsitään sopivaa parturi-kampaamoa tai showroomia. Tule vaikuttamaan pohjaratkaisuun ja materiaaleihin.
Tunnelmallinen Merikortteli on ainutlaatuinen kiinteistö merellisen Punavuoren sydämessä.
Ilmoituksen sisäkuvat ovat yleiskuvia kiinteistön eri tiloista.
Talossa toimii monipuolinen joukko yrityksiä kahvipaahtimosta mainostoimistoihin, jotka yhdessä muodostavat ainutlaatuisen ja eloisan työyhteisön.
Merikorttelin selkeä rakenne tekee erilaisten pohjaratkaisujen suunnittelusta helppoa ja joustavaa. Avarien tilojen huonekorkeus on poikkeuksellisen suuri. Isoista, luonnonvaloa tulvivista ikkunoista voi ihailla upeita ympäröiviä maisemia: kauniita historiallisia rakennuksia ja Punavuoren eloisaa katukuvaa. Lähistöllä on paljon ravintoloita ja Hietalahden kauppahalli löytyy nurkan takaa. Punavuoreen on hyvät kulkuyhteydet ja Baana sijaitsee ihan vieressä. Merenranta on vain kivenheiton päässä.
Tunnelmallinen Merikortteli on ainutlaatuinen kiinteistö merellisen Punavuoren sydämessä.
Ilmoituksen sisäkuvat ovat yleiskuvia kiinteistön eri tiloista.
Talossa toimii monipuolinen joukko yrityksiä kahvipaahtimosta mainostoimistoihin, jotka yhdessä muodostavat ainutlaatuisen ja eloisan työyhteisön.
Merikorttelin selkeä rakenne tekee erilaisten pohjaratkaisujen suunnittelusta helppoa ja joustavaa. Avarien tilojen huonekorkeus on poikkeuksellisen suuri. Isoista, luonnonvaloa tulvivista ikkunoista voi ihailla upeita ympäröiviä maisemia: kauniita historiallisia rakennuksia ja Punavuoren eloisaa katukuvaa. Lähistöllä on paljon ravintoloita ja Hietalahden kauppahalli löytyy nurkan takaa. Punavuoreen on hyvät kulkuyhteydet ja Baana sijaitsee ihan vieressä. Merenranta on vain kivenheiton päässä.
Pysäköinti
Pysäköintitilaa tarjolla korttelin omassa parkkihallissa sekä läheisissä pysäköintilaitoksissa.
Palvelut
Kiinteistössä Kaffa Roastery, Moko Market & Café ja Alepa. Toistakymmentä ravintolaa tai kahvilaa 500 metrin säteellä kiinteistöstä.
Kulkuyhteydet
Metroasema 1,5 km, Raitiovaunupysäkki 100 m, Bussipysäkki 200 m, Juna-asema 1,9 km, Lentoasema 23,1 km
Vapautuu
Heti
Kerros
1 / 6
Energiatehokkuusluokka
Ei lain edellyttämää energiatodistusta
Katutasossa
Näkyvällä paikalla
Hissi
Ota yhteyttä
ScanReal Oy LKV
Opus Business Park
Hitsaajankatu 24
00810 Helsinki
info@scanreal.fi
Puh:
Näytä puhelinnumero
020 730 8830
Sopivat toimitilat yhdellä otolla!
Kartoitamme toimitilatarpeesi ja etsimme yrityksellesi parhaiten sopivat vapaat toimitilat. Koska vuokranantajat maksavat palvelumme, on tämä yrityksellesi veloituksetonta.
OTA YHTEYTTÄ - SOVI NÄYTTÖ!
Kaikki kohteemme eivät ole netissä, kerro tilatarpeesi niin kartoitamme vaihtoehdot.
Palvelumme on tilanhakijalle ilmainen
Pyydä lisätietoa
