Vuokrataan toimistotilat - Helsinki
Hermannin Rantatie 8, Kalasatama, 00580 Helsinki #10809592
Modernia toimistotilaa Rantatie Business Parkista, Helsingin Kalasatamasta.
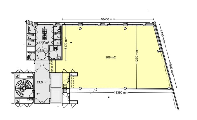
Tämä 208 m² toimistotila sijaitsee kiinteistön 5. kerroksessa. Tila on mahdollista yhdistää viereisen 1055 m² tilan kanssa, jolloin kokonaisneliöt ovat 1263 m². Kuvat ovat yleiskuvia kiinteistön tiloista.
Rantatie Business Park on moderni ja tyylikäs kokonaisuus Kalasataman kehittyvällä alueella. Toimitilat ovat helposti muunneltavissa vuokralaisen tarpeiden mukaan. Kiinteistössä on tarjolla monipuoliset palvelut, kuten aulapalvelu, siivous, vartointi, kokoustilat, remontti- ja sisustussuunnittelupalvelu, lounasravintola, kahvio sekä juhla- ja cateringpalvelut.
Kysy lisää numerosta 044 723 4700 tai info@bref.fi. Palvelumme on tilanhakijoille ilmainen.
Hissi
Bureau Real Estate Finland Oy
Lars Sonckin kaari 16, 02600 Espoo
Näytä puhelinnumero
0447234700
Bureau Real Estate Finland Oy
https://www.bref.fi