Vuokrataan toimistotilat - Espoo
Lintuvaarantie 2/Vanha Maantie 1, Leppävaara, 02650 Espoo #10809488
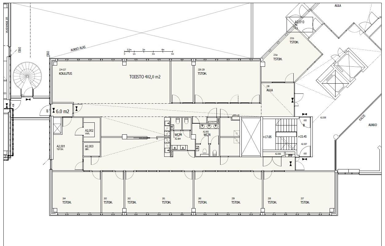
Vuokrattavana juna-aseman läheisyydessä siistiä, ilmastoitua huonetoimistotilaa.
Osoite
Lintuvaarantie 2/Vanha Maantie 1, 02650 Espoo
Tilatyyppi
Toimistotilaa
402 m2
Kiinteistö
Vuokrattavana juna-aseman läheisyydessä siistiä, ilmastoitua huonetoimistotilaa.
Sijainti
Leppävaara, Espoo
Pysäköinti
Kiinteistössä on vuokattavissa runsaasti autopaikkoja omasta hallista tai pihalta.
Palvelut
-Henkilöstöravintola
-Vuokrattavia neuvottelutiloja
-Auditorio
-Saunaosasto
-Kuntosali
-Vuokrattavia neuvottelutiloja
-Auditorio
-Saunaosasto
-Kuntosali
Kulkuyhteydet
-Bussipysäkki 100 m
-Juna-asema 300 m
-Lentoasema 13,6 km
-Juna-asema 300 m
-Lentoasema 13,6 km
Vapautuu
Heti
Kerros
2
Energiatehokkuusluokka
Ei lain edellyttämää energiatodistusta
Näkyvällä paikalla
Hissi
Ota yhteyttä
REALIUM OY LKV
Tammasaarenkatu 1, 00180 Helsinki
Vaihde:
Näytä puhelinnumero
010 326 346
Tuomo Mäkelä
tuomo.makela@realium.fi
p.
Näytä puhelinnumero
044 050 1158
Joel Keto
joel.keto@realium.fi
p.
Näytä puhelinnumero
045 317 0330
KAIKKI TILAVAIHTOEHDOT KERRALLA!
SOITA - MEILAA JA TILAA NÄYTTÖ!
Ilmainen palvelu tilanhakijoille.
Kartoitamme parhaat tilavaihtoehdot.
Kaikki kohteet eivät ole netissä.
Pyydä lisätietoa
