Vuokrataan toimistotilat - Espoo
Tarvonsalmentie 15, Perkkaa, 02600 Espoo #10809482
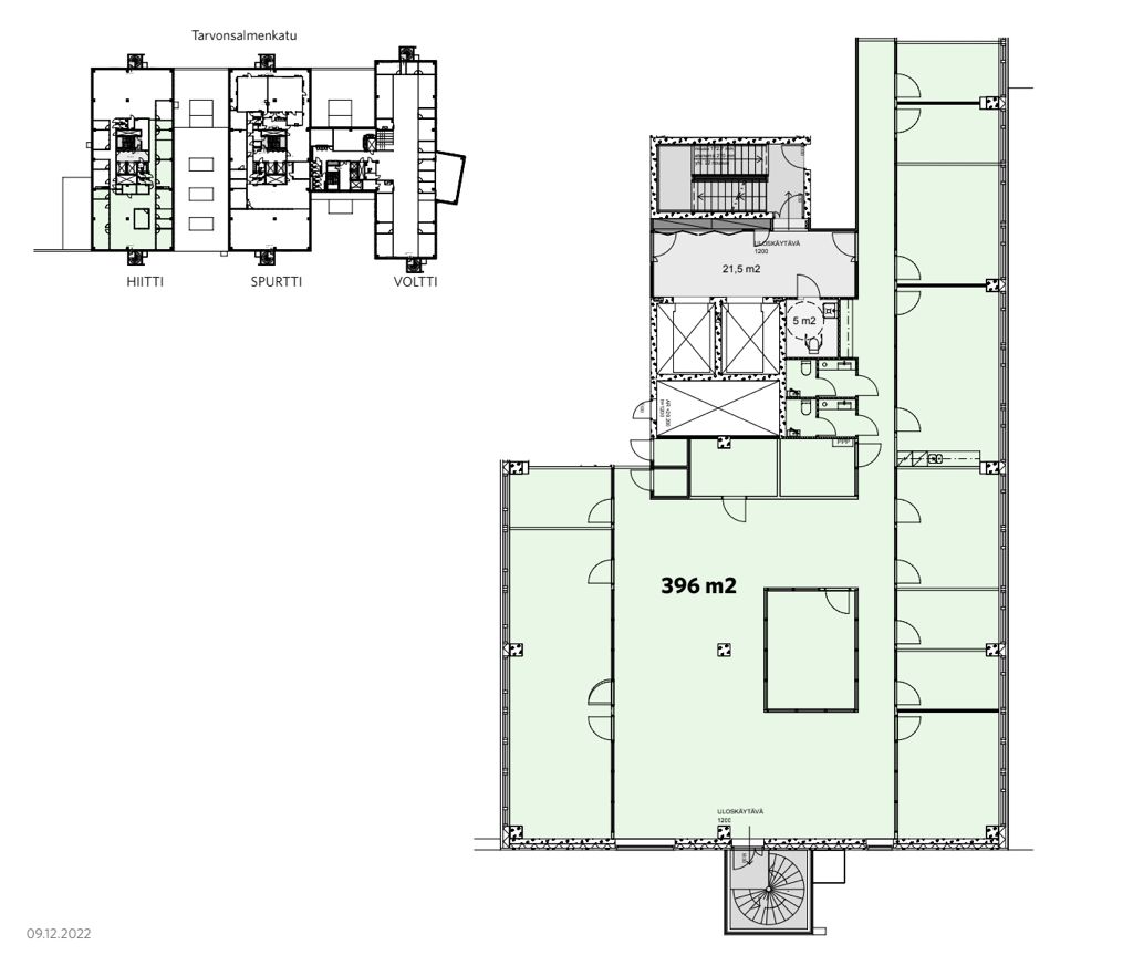
Vuokrataan ylimmän kerroksen hyväkuntoinen monitilatoimisto, josta avarat näkymät aina merelle asti. Tilassa on avotilaa sekä erillisiä huoneita.
Derby Business Park on moderni kolmen toimistotalon kokonaisuus Perkkaalla. Derbyssä on monipuoliset palvelut tilojen vuokralaisille, kuten aulapalvelu, ravintola ja kahvila, erikseen vuokrattavia neuvottelutiloja, kuntosali, sekä pukuhuoneet ja saunatilat.
Kiinteistö sijaitsee hyvien kulkuyhteyksien varrella, joten paikalle pääsee niin omalla autolla kuin julkisilla kulkuvällineilläkin.
Lisätietoja soita 020 730 4530 tai info@repoint.fi. Palvelumme on tilanhakijalle ilmainen.
Repoint Toimitilat Oy
Itälahdenkatu 22 B, 00210 Helsinki
Näytä puhelinnumero
020 730 4530
Lisätietoja soita Näytä puhelinnumero 020 730 4530 tai info@repoint.fi
https://repoint.fi/