Vuokrataan toimistotilat - Helsinki
Kiviaidankatu 2, Lauttasaari, 00210 Helsinki #10809306
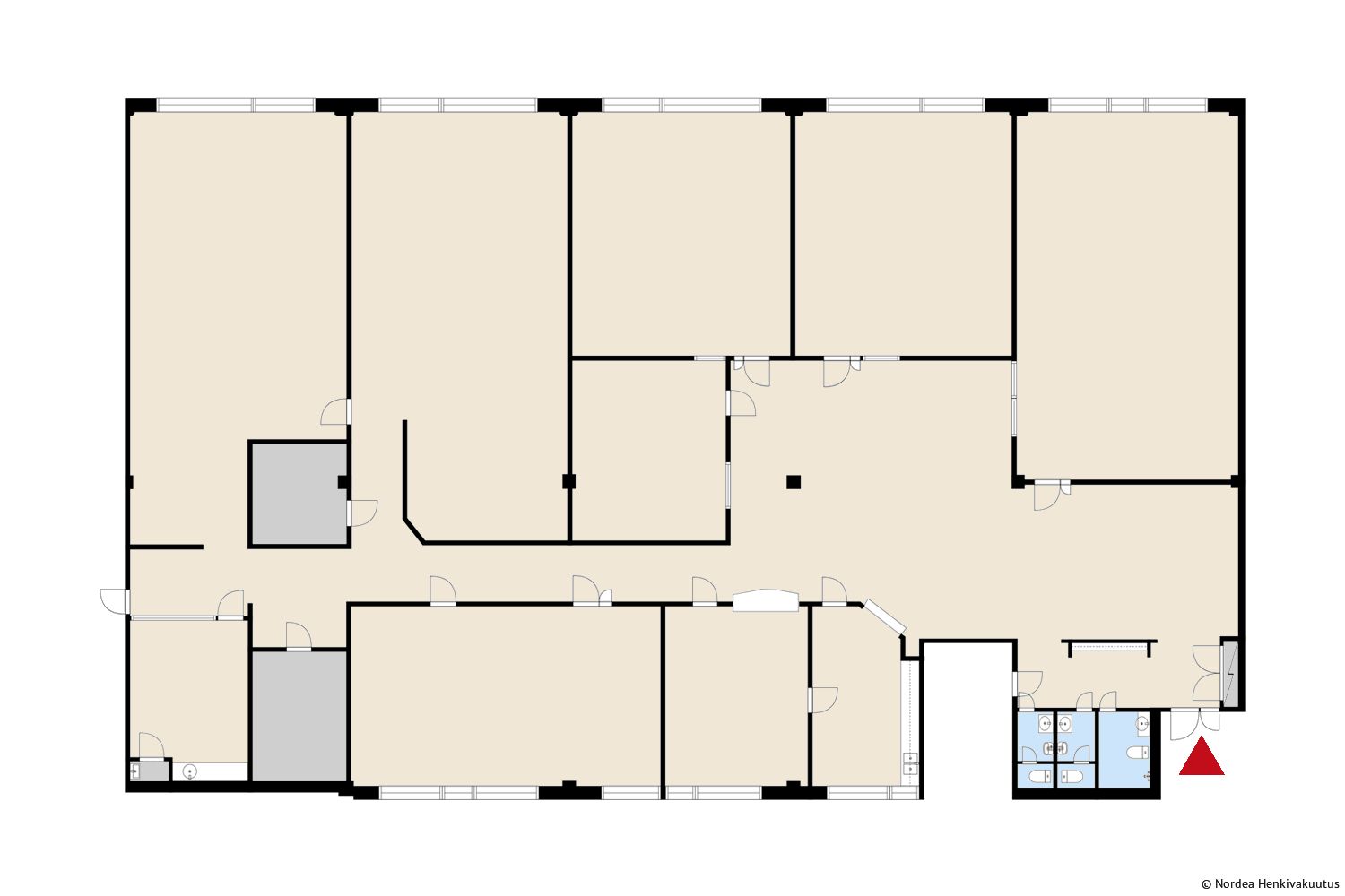
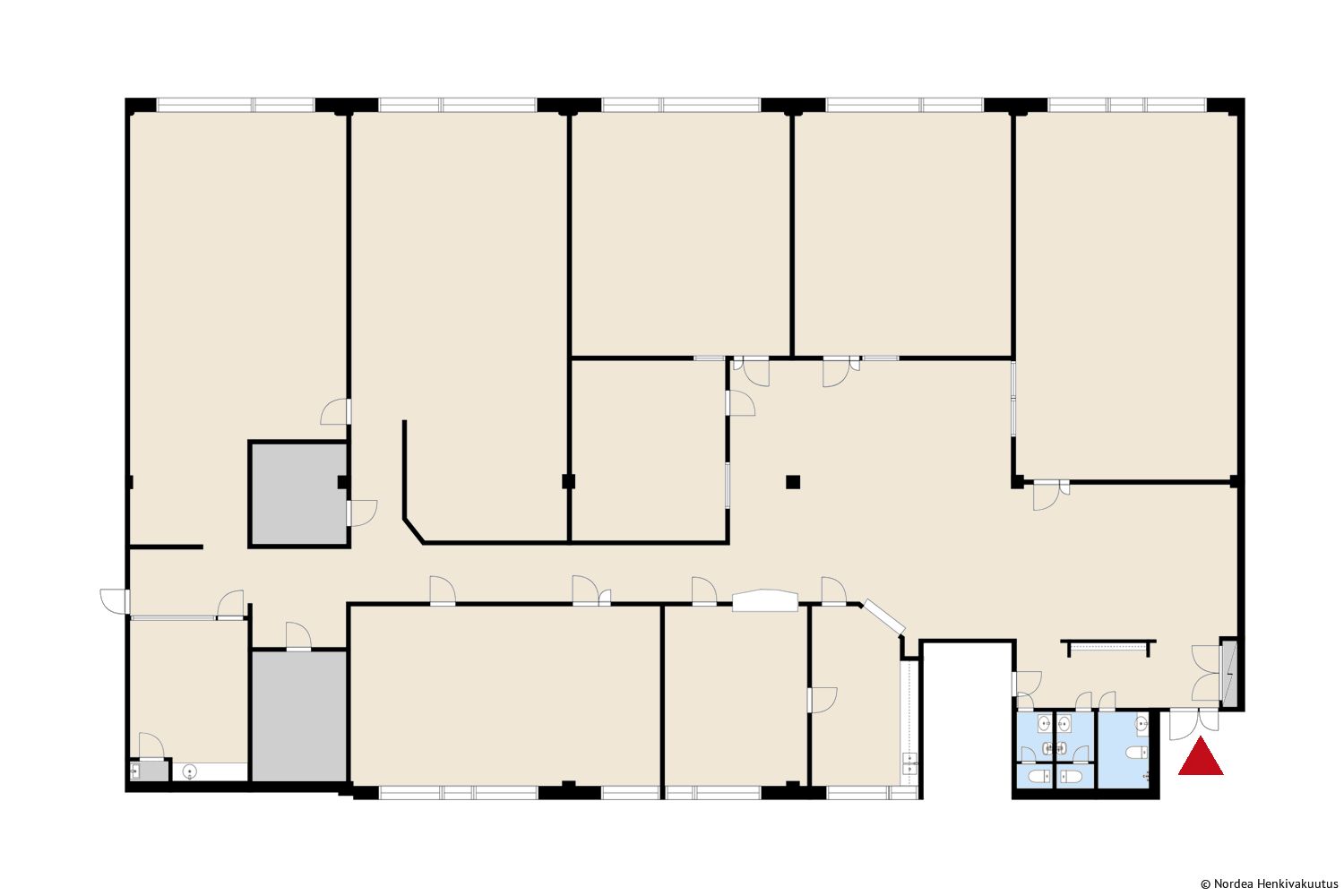
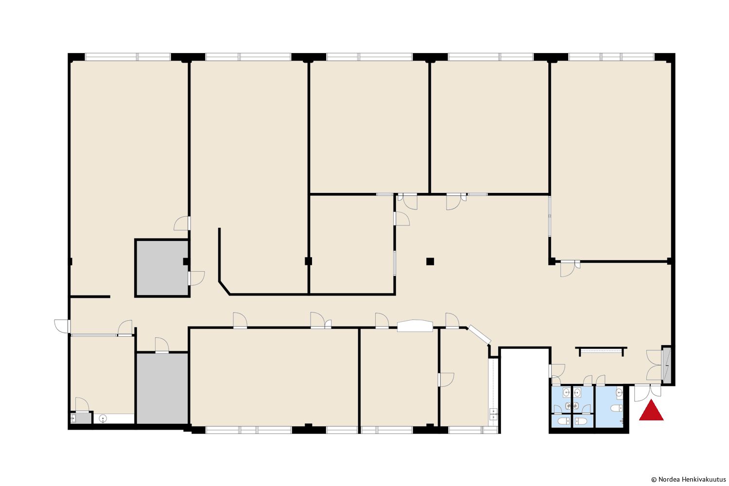
Vuokrattavana toimisto, joka sisältää nykymuodossaan useita isoja huoneita ja työtiloja. Tiloja voi helposti muokata tulevan käyttäjän tarpeita vastaavaksi, esim. avotoimistoksi. Toimitila soveltuu myös esim. koulutuskäyttöön. Nordea Henkivakuutus Suomi Oy:n omistamissa kiinteistössä käytetään vihreää kiinteistösähköä.
Nordea Henkivakuutus Suomi Oy
Aleksis Kiven katu 9, Helsinki 00020 NORDEA
Juha Hakala
Näytä puhelinnumero
050 477 7966
Nordea Henkivakuutus Suomi Oy vuokraa toimitiloja omistamistaan ja hallinnoimistaan sijoituskiinteistöistä pääkaupunkiseudulla. Toimitilavuokrauksessa Nordea Henkivakuutuksen yhteistyökumppani on Newsec Asset Management.
http://nordeahenkivakuutustoimitilat.fi