Vuokrataan liiketilat - Helsinki
Hämeentie 29, Sörnäinen, 00500 Helsinki #10809253
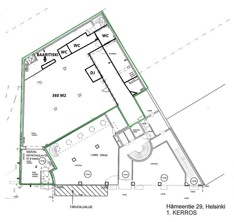
Liiketilaa katutasossa Sörnäisissä erinomaisella sijainnilla.
Tämä 360m2 tila on toiminut aikaisemmin yökerhona, mutta taipuu monenlaiseen toimintaan. Huom! Ei sovi ruokaravintolaksi.
Hämeentie 29 on liike- ja toimistokiinteistön erinomaisella paikalla Kurvissa, Sörnäisissä. Kiinteistön katutasossa mm. ravintola ja kahvila. Ympärillä Sörnäisten alueen muut palvelut.
Kysy lisää numerosta 050 589 7224 / rony.korsstrom@bref.fi tai 044 723 4700 / info@bref.fi. Palvelumme on tilanhakijoille ilmainen.
Hissi
Bureau Real Estate Finland Oy
Lars Sonckin kaari 16, 02600 Espoo
Näytä puhelinnumero
0447234700
Bureau Real Estate Finland Oy
https://www.bref.fi