Vuokrataan liiketilat - Helsinki
Forum-kortteli, Simonkatu 6, Keskusta, 00100 Helsinki #10809197
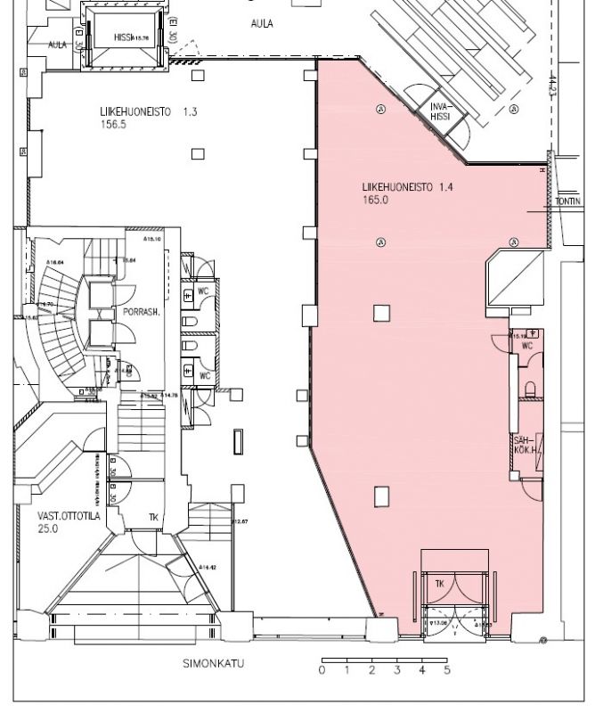
Vuokrataan katutason liiketila loistopaikalla kauppakeskus Forumin korttelissa. Sisäänkäynti Simonkadulta sekä Forumin kauppakäytävältä. KATSO POHJAKUVA LIITETIEDOSTOSTA, soita ja kysy lisää! puh. 09 7745 100.
Osoite
Simonkatu 6, 00100 Helsinki
Tilatyyppi
Liiketilaa
165 m2
Pohjapiirros
Kiinteistö
MTK-talo
Sijainti
Kauppakeskus Forum-kortteli
Ympäristö
Ydinkeskusta.
Pysäköinti
Forum-P parkkihalli.
Palvelut
Kattavat, mm. Forumissa yli 100 liikettä, kahvilaa, ravintolaa, kioskia...
Kulkuyhteydet
Metro, raitiovaunut, bussit, junat.
Muuta
Katso lisää kohteita kotisivujemme www.senaatinnotariaatti.fi hakukoneesta, sivustolta löytyy myös kohteita joita ei ole yleisessä jakelussa. Tai soita meille suoraan puh. 09 7745 100 ja kerro tarkemmin tilatarpeistanne, me löydämme teille parhaan mahdollisen tarjolla olevan toimitilaratkaisun.
Vapautuu
Heti
Energiatehokkuusluokka
Ei lain edellyttämää energiatodistusta
Katutasossa
Näkyvällä paikalla
Hissi
Liitetiedostot
Ota yhteyttä
Senaatin Notariaatti Oy LKV
Lämmittäjänkatu 4 A
FIN-00880 Helsinki
Tel:
Näytä puhelinnumero
+358 9 7745 100
Pyydä lisätietoa
