Vuokrataan toimistotilat - Helsinki
Leppäsuonkatu 9, Kamppi, 00100 Helsinki #10809111
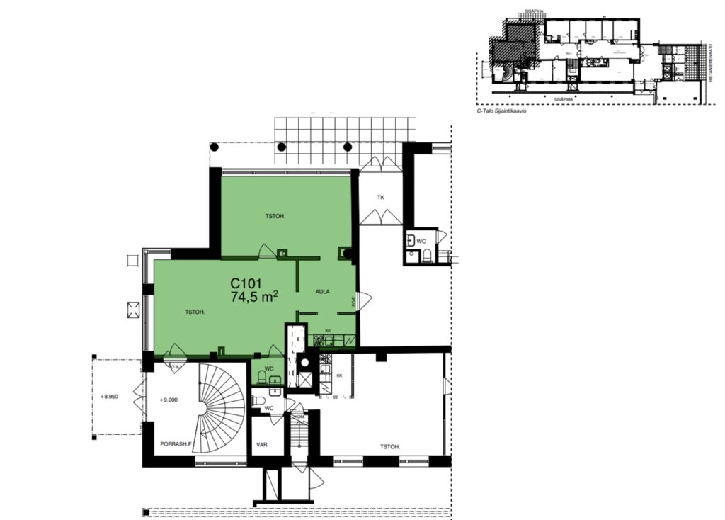
Muuttovalmis, hyväkuntoinen ja tehokas toimistotila Kampista.
Tämä 74,5m² toimisto koostuu kahdesta erillisestä avonaisesta tilasta, omasta keittokomerosta sekä wc-tilasta. Toista huonetta voi käyttää hyvin neuvotteluhuoneena hyvän äänieristyksen johdosta. Sisäänkäynti tilaan tapahtuu Leppäsuonkadulta tai Hietaniemenkadulta.
Domus Academica eli Domma koostuu kahdesta vuokra-asuntoja tarjoavasta kiinteistöstä hyvien kulkuyhteyksien varrella Kampissa. Asuntojen lisäksi Domus Academicalla sijaistee myös ravintola-, osakunta- ja toimistotiloja. Kiinteistöstä on maanalainen yhteys viereiseen Domus Gaudiumiin sekä parkkihalliin. Kiinteistö sijaitsee kävelyetäisyydellä Kampin keskuksesta. Tilat on peruskorjattu vuosina 2000-2004 ja niissä on nykyaikaiset tietoliikenneyhteydet.
Kysy lisää numerosta 044 723 4700 tai info@bref.fi. Palvelumme on tilanhakijoille ilmainen.
Bureau Real Estate Finland Oy
Lars Sonckin kaari 16, 02600 Espoo
Näytä puhelinnumero
0447234700
Bureau Real Estate Finland Oy
https://www.bref.fi