Vuokrataan toimistotilat - Helsinki
Tukkutorinkuja 5, Kalasatama, 00580 Helsinki #10809029
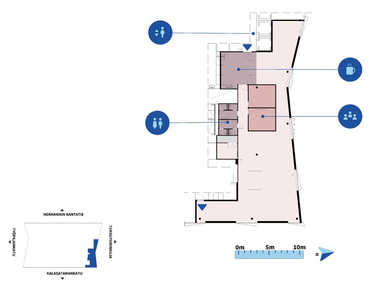
Uutta, siistiä toimistotilaa, joka muokataan vuokralaisen toiveiden mukaiseksi. Oma keittiö ja useampi WC sekä neuvotteluhuoneita. Hissillä pääsee kätevästi tilan sisääntulon viereen. Kerroksiin tulee paljon luonnonvaloa suurten ikkunoiden ja kattoikkunarakenteen kautta. Tilan ikkunat Tukkutorinkujan suuntaan. Hyvin varustellusta modernista kiinteistöstä löytyy oma ravintola, aulapalvelu, hyvät kokoustilat ja auditorio sekä oma parkkihalli.
Kampuksella on yli 800 m2:n kokousmaailma talon 2.kerroksessa, jossa myös erikseen ravintolan yhteydessä olevia kokoustiloja. Lisäksi 7. kerroksessa iso tapahtumatila terasseineen\"
Lisätietoja 020 7290 710, lisää kohteita www.premises.fi
Kohteella ei ole lain edellyttämää energiatodistusta tai energialuokka ei tiedossa.Kerros: 6
CRE PREMISES
Puh. Näytä puhelinnumero 020 7290 710
Vantaankoskentie 14
01670 VANTAA
