Kohteesta ei kuvia
Vuokrataan tuotantotilat - Jyväskylä
Savelankatu 3, Savela, 40700 Jyväskylä #10808997
Ennakkomarkkinoinnissa uutta varasto-/tuotantotilaa Jyväskylän Savelasta.
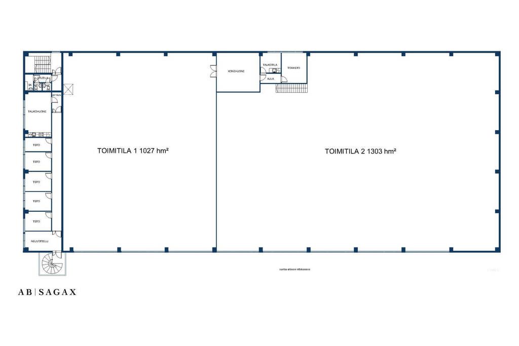
Rakennukseen tulee jopa 2331 m² toimitilaa, joka on suunniteltu erityisesti kevyeen tuotantoon ja varastoinnin tarpeisiin. Kokonaisuus on mahdollista jakaa useammalle käyttäjälle. Tilojen vapaa korkeus on 8 metriä. Nosto-ovien koko on 4,2 m x 3 m. Lattian kantavuus on 5000kg/m². Mahdollisuus siltanosturiin. Kohteen arvioitu valmistumisaika on vuoden 2025 loppuun mennessä.
Savelankatu 3 sijaitsee lähellä keskustaa, vilkkaalla Savelan alueella. Savela tunnetaan kehittyvänä yrityskeskittymänä. Alueella on monipuolisia palveluita, kuten päivittäistavarakauppoja, lounasravintoloita ja kuntosaleja. Kiinteistön pihalla on pysäköintitilaa.
Kysy lisää numerosta 044 723 4700 tai info@bref.fi. Palvelumme on tilanhakijoille ilmainen.
kauppoja, lounasravintoloita ja kuntosaleja. Kiinteistön pihalla on pysäköintitilaa.
Siltanosturi
Bureau Real Estate Finland Oy
Lars Sonckin kaari 16, 02600 Espoo
Näytä puhelinnumero
0447234700
Bureau Real Estate Finland Oy
https://www.bref.fi