Vuokrataan toimistotilat - Espoo
Polaris Business Park Castor, Itsehallintokuja 4, Etelä-Leppävaara, 02600 Espoo #10808952
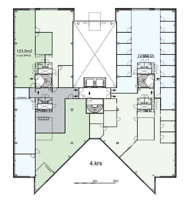
Valoisa tila koostuu 123,5m2 omasta toimistosta, neuvotteluhuoneesta sekä yhteisestä alueesta 23,5m2. Pientoimistoalueella on yhteiskäyttöinen keittiö, astiat, kahvin ja vedenkeitin. Sähköt sekä yhteisten alueiden siivous kuuluvat vuokraan.
Osoite
Itsehallintokuja 4, 02600 Espoo
Tilatyyppi
Toimistotilaa
147 m2
Muuta
Polaris Business Park sijaitsee näkyvällä paikalla Turun moottoritien ja Kehä I:n kainalossa, Leppävaaran keskustan lähettyvillä. Polaris on kolmen toimistorakennuksen ja parkkitalon yrityspuisto Espoon Leppävaarassa.
Vuonna 2008 valmistunut kiinteistössä on yhteensä noin 17 700 m2 laadukkaasta toimistotilaa. Hyvä sijainti, joustavat tilat ja kattavat palvelut tekevät Polariksesta erinomaisen paikan monenlaisille yrityksille.
Junalle, metrolle ja Raide-Jokeri -linjalle pääset kätevästi Alepa pyörillä, lähin Alepa pyörä asema on aivan Polariksen vieressä. Voit myös lainata kohteen omia Polaris -pyöriä ja asioida vaikka Leppävaaran keskustassa.
Vuonna 2008 valmistunut kiinteistössä on yhteensä noin 17 700 m2 laadukkaasta toimistotilaa. Hyvä sijainti, joustavat tilat ja kattavat palvelut tekevät Polariksesta erinomaisen paikan monenlaisille yrityksille.
Junalle, metrolle ja Raide-Jokeri -linjalle pääset kätevästi Alepa pyörillä, lähin Alepa pyörä asema on aivan Polariksen vieressä. Voit myös lainata kohteen omia Polaris -pyöriä ja asioida vaikka Leppävaaran keskustassa.
Vapautuu
Kysy
Rakennusvuosi
2011
Kerros
4
Ota yhteyttä
Juhola Asset Management Oy
Itsehallintokuja 4 02600 Espoo
Näytä puhelinnumero
040 4551 390
Leena Juhola
Pyydä lisätietoa
