Vuokrataan toimistotilat - Helsinki
Kuortaneenkatu 1, Itä-Pasila, 00520 Helsinki #10808951
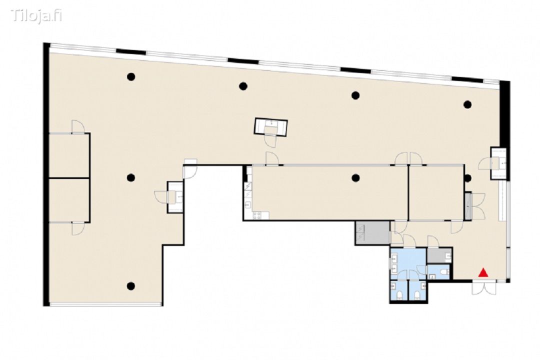
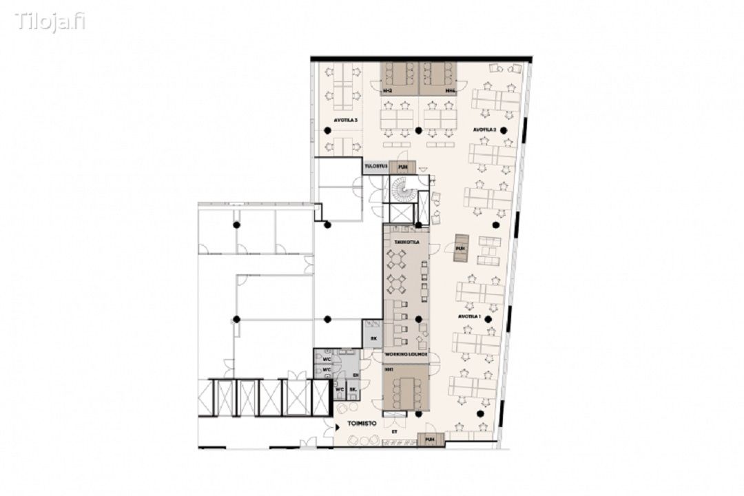
Tämä 1758m2 yhden tason toimitilakokonaisuus sijaitsee kiinteistön 5. kerroksessa. Tila remontoidaan vuokralaisen tarpeiden mukaan. Tila sisältää kerroksen hissiaulan.
Osoite
Kuortaneenkatu 1, 00520 Helsinki
Tilatyyppi
Toimistotilaa
1758 m2
Muuta
Kuortaneenkatu 1 on vuonna 1969 valmistunut teollisuuskiinteistö, joka on saneerattu toimistokäyttöön vuonna 1998. Yhteiset aula- ja neuvottelutilat on kunnostettu keväällä 2013. Useimmat vuokrattavat on juuri remontoitu ja niissä on selvästi aistittavissa aitoa industrial-henkeä. Vuokrattavat tilat voidaan tarvittaessa muokata tulevien käyttävien tarpeita varten sopiviksi.
Kiinteistö sijaitsee Helsingin Vallilassa, muutaman kilometrin päässä Helsingin keskustasta, hyvien julkisten liikenneyhteyksien varrella, noin kilometrin päässä Triplasta ja Pasilan juna-asemasta.
Kiinteistössä on kattavat palvelut kuten aulapalvelu, lounasravintola, kuntosali, vuokrattavia neuvottelutiloja ja Aimo Parkin operoima pysäköintihalli, jonka lisäksi kadunvarsipysäköintitilaa löytyy mm. Kuortaneenkadun varrelta. Käyttäjien arkea helpottavat henkilöhissien lisäksi kolme tavarahissiä (100 - 2000kg), joilla pääsee lastauslaiturilta suoraan kerroksiin.
Pyöräilijöitä varten talossa on suihkutilat ja sisäpihalta löytyy pyöräparkki.
Kiinteistö sijaitsee Helsingin Vallilassa, muutaman kilometrin päässä Helsingin keskustasta, hyvien julkisten liikenneyhteyksien varrella, noin kilometrin päässä Triplasta ja Pasilan juna-asemasta.
Kiinteistössä on kattavat palvelut kuten aulapalvelu, lounasravintola, kuntosali, vuokrattavia neuvottelutiloja ja Aimo Parkin operoima pysäköintihalli, jonka lisäksi kadunvarsipysäköintitilaa löytyy mm. Kuortaneenkadun varrelta. Käyttäjien arkea helpottavat henkilöhissien lisäksi kolme tavarahissiä (100 - 2000kg), joilla pääsee lastauslaiturilta suoraan kerroksiin.
Pyöräilijöitä varten talossa on suihkutilat ja sisäpihalta löytyy pyöräparkki.
Vapautuu
Kysy
Rakennusvuosi
1969
Kerros
5
Ota yhteyttä
Juhola Asset Management Oy
Itsehallintokuja 4 02600 Espoo
Näytä puhelinnumero
040 4551 390
Leena Juhola
Pyydä lisätietoa
