Vuokrataan toimistotilat - Espoo
Espoon Swing B, Miestentie 5-7, Otaniemi, 02150 Espoo #10808918
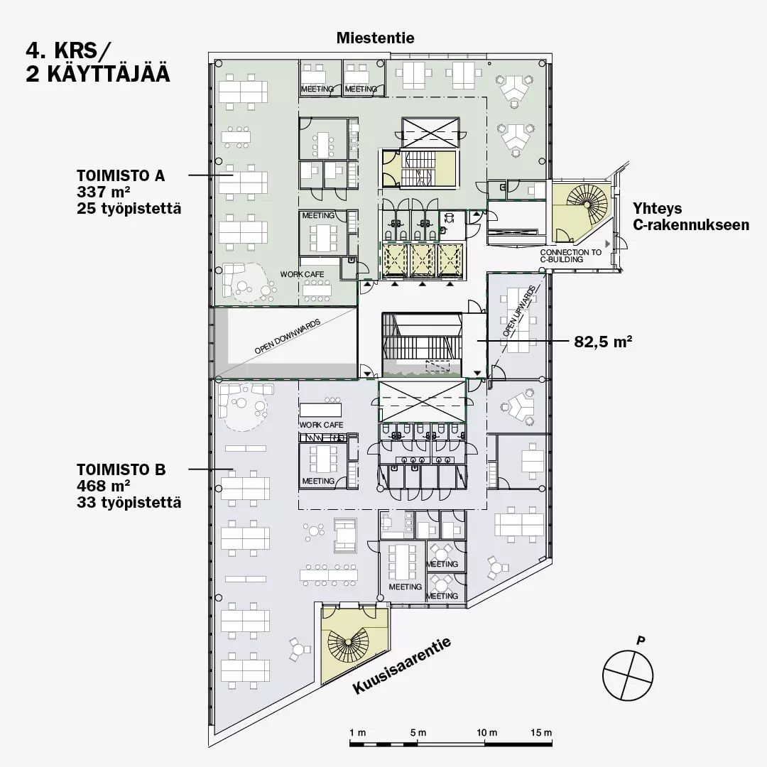
Tästä monitilatyöympäristöstä avautuu ikkunat kolmeen suuntaan. Koko kerros on n. 900 m2, ikkunat neljään suuntaan.
Osoite
Miestentie 5-7, 02150 Espoo
Tilatyyppi
Toimistotilaa
510 m2
Muuta
Swing House sijaitsee yhdessä pääkaupunkiseudun houkuttelevimmista yrityskeskittymistä. Keilaniemen yritysalueen ja Otaniemen kampuksen läheisyys mahdollistaa tärkeät yhteydet niin uusiin innovaatioihin ja osaajiin kuin vakiintuneempiin yhteistyökumppaneihin ja asiakkaisiinkin. Matka Helsingin päärautatieasemalle kestää 12 minuuttia ja Helsinki-Vantaalle 25 minuuttia.
Swing House Campus on kahden toimistorakennuksen ja hotellin muodostama kokonaisuus, jonka humaanit, hyvinvointia tukevat ratkaisut, aidot materiaalit ja koko talon korkuinen viherseinä tarjoavat yrityksille viiden tähden työympäristön. Yhteisölliset, vuorokauden ympäri elävät tilat, käyttäjälähtöiset palvelut sekä luonnonläheinen sijainti metron ja uuden Raide-Jokerin vieressä tekevät WELL-sertifioidusta Swing Housesta ainutlaatuisen ja inspiroivan paikan modernille työlle!
Uniikisti kuvioitu graafinen betoni, ruosteenhohtoinen corten-teräs, laadukkaat puu- ja betonilattiat sekä suuret ikkunapinnat tekevät Swing Housesta modernin tyylikkään kokonaisuuden, jossa on ripaus vanhan teollisuusmiljöön tuntua. Sijainti Espoossa perinteikkään Otaniemen ja tulevaisuuteen tähyävän Keilaniemen rajalla tuo kiinteistöön kiinnostavaa kontrastia, jossa Alvar Aallon 1950-luvulla suunnittelema puistokampus ja punatiilinen teollisuusarkkitehtuuri kohtaavat Keilaniemen uutuuttaan kiiltelevät pääkonttorikiinteistöt ja futuristiset tornitalot.
Tilojen akustiikkaan on kiinnitetty erityistä huomiota. Jokaiseen kerrokseen on suunniteltu yksilöllinen, rauhoittava äänimaisena, joka houkuttelee käyttämään portaita hissin sijaan. Elimistön sisäistä vuorokausirytmiä noudatteleva valaistus muuntuu päivän mittaan kirkkaasta valkoisesta lämpimään keltaiseen ja auttaa säilyttämään vireystason pitkän, pimeän talven ajan. Työmatkapyöräilijöitä hemmotellaan omalla rampilla, joka kulkee pyörätieltä suoraan kiinteistön lämpimään pyöräparkkiin ja näiden välittömässä läheisyydessä sijaitseviin huippuluokan suihku- ja pukeutumistiloihin. Liikkumiseen kannustavat myös kuntosali ja liikunta- ja hyvinvointitilat.
Swing Housessa kiinteistön pohjapiirustukset tukevat tilojen joustavuutta optimaalisella tavalla. Laajentumisvara toteutuu paitsi kerroksittain myös kerrosten välillä. Tämän tekee mahdolliseksi jo rakennusvaiheessa kahden toimistokerroksen väliselle sisäportaalle tehty rakenteellinen varaus. Kaikki toimistotilat voidaan toteuttaa yrityksen tarpeen mukaisesti. Lattiarasioin toteutettu sähkönsyöttö mahdollistaa jo tehtyjen pohjapiirustusten joustavat muutokset.
Talon sydän on vihreä ja vastuullinen lounasravintola, joka on ajassa kiinni, tekee ruokansa käsityönä ja palvelee asiakkaansa suurella sydämellä. Käytetyt raaka-aineet ovat vastuullista alkuperää, ja tarjolla on päivittäin kotimaista lähiruokaa. Aulapalvelu, viihtyisä lounge ja lounasravintola sijaitsevat avaran pääaulan välittömässä läheisyydessä. Sisäyhteys hotelliin kulkee loungen kautta. Ensimmäisestä kerroksesta löytyvät myös edustavat kokous-ja neuvottelutilat laadukkain catering-palveluin.
Swing House Campus on kahden toimistorakennuksen ja hotellin muodostama kokonaisuus, jonka humaanit, hyvinvointia tukevat ratkaisut, aidot materiaalit ja koko talon korkuinen viherseinä tarjoavat yrityksille viiden tähden työympäristön. Yhteisölliset, vuorokauden ympäri elävät tilat, käyttäjälähtöiset palvelut sekä luonnonläheinen sijainti metron ja uuden Raide-Jokerin vieressä tekevät WELL-sertifioidusta Swing Housesta ainutlaatuisen ja inspiroivan paikan modernille työlle!
Uniikisti kuvioitu graafinen betoni, ruosteenhohtoinen corten-teräs, laadukkaat puu- ja betonilattiat sekä suuret ikkunapinnat tekevät Swing Housesta modernin tyylikkään kokonaisuuden, jossa on ripaus vanhan teollisuusmiljöön tuntua. Sijainti Espoossa perinteikkään Otaniemen ja tulevaisuuteen tähyävän Keilaniemen rajalla tuo kiinteistöön kiinnostavaa kontrastia, jossa Alvar Aallon 1950-luvulla suunnittelema puistokampus ja punatiilinen teollisuusarkkitehtuuri kohtaavat Keilaniemen uutuuttaan kiiltelevät pääkonttorikiinteistöt ja futuristiset tornitalot.
Tilojen akustiikkaan on kiinnitetty erityistä huomiota. Jokaiseen kerrokseen on suunniteltu yksilöllinen, rauhoittava äänimaisena, joka houkuttelee käyttämään portaita hissin sijaan. Elimistön sisäistä vuorokausirytmiä noudatteleva valaistus muuntuu päivän mittaan kirkkaasta valkoisesta lämpimään keltaiseen ja auttaa säilyttämään vireystason pitkän, pimeän talven ajan. Työmatkapyöräilijöitä hemmotellaan omalla rampilla, joka kulkee pyörätieltä suoraan kiinteistön lämpimään pyöräparkkiin ja näiden välittömässä läheisyydessä sijaitseviin huippuluokan suihku- ja pukeutumistiloihin. Liikkumiseen kannustavat myös kuntosali ja liikunta- ja hyvinvointitilat.
Swing Housessa kiinteistön pohjapiirustukset tukevat tilojen joustavuutta optimaalisella tavalla. Laajentumisvara toteutuu paitsi kerroksittain myös kerrosten välillä. Tämän tekee mahdolliseksi jo rakennusvaiheessa kahden toimistokerroksen väliselle sisäportaalle tehty rakenteellinen varaus. Kaikki toimistotilat voidaan toteuttaa yrityksen tarpeen mukaisesti. Lattiarasioin toteutettu sähkönsyöttö mahdollistaa jo tehtyjen pohjapiirustusten joustavat muutokset.
Talon sydän on vihreä ja vastuullinen lounasravintola, joka on ajassa kiinni, tekee ruokansa käsityönä ja palvelee asiakkaansa suurella sydämellä. Käytetyt raaka-aineet ovat vastuullista alkuperää, ja tarjolla on päivittäin kotimaista lähiruokaa. Aulapalvelu, viihtyisä lounge ja lounasravintola sijaitsevat avaran pääaulan välittömässä läheisyydessä. Sisäyhteys hotelliin kulkee loungen kautta. Ensimmäisestä kerroksesta löytyvät myös edustavat kokous-ja neuvottelutilat laadukkain catering-palveluin.
Vapautuu
Kysy
Rakennusvuosi
2021
Kerros
4
Ota yhteyttä
Juhola Asset Management Oy
Itsehallintokuja 4 02600 Espoo
Näytä puhelinnumero
040 4551 390
Leena Juhola
Pyydä lisätietoa
