Vuokrataan toimistotilat - Espoo
Derby Business Park, Tarvonsalmenkatu 13-19, Etelä-Leppävaara, 02600 Espoo #10808871
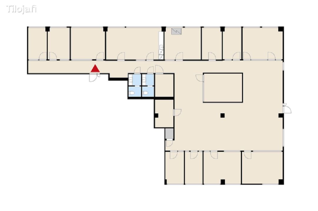
Vuokrataan ylimmän kerroksen hyväkuntoinen monitoimitoimisto, josta avarat näkymät aina merelle asti. Tilassa on avotilaa sekä erillisiä huoneita.
Osoite
Tarvonsalmenkatu 13-19, 02600 Espoo
Tilatyyppi
Toimistotilaa
396 m2
Muuta
Derby Business Park tarjoaa joustavat toimistotilat luonnon helmassa, joissa päivänvalon runsaus sekä rauhoittavat merinäkymät tekevät työpäivistä entistäkin miellyttävämpiä.
Täällä pääset nauttimaan erinomaisista palveluista, kuten suositusta ravintolasta, sauna- ja kokoontumistiloista sekä autopesusta. Merellisestä miljööstä on hyvät yhteydet palveluiden äärelle.
Kävely- ja pyörätiet yhdistävät alueen puistot sekä liikunta- ja leikkipaikat Vermonniitty ympäristöineen tarjoaa täydelliset mahdollisuudet aktiiviseen työaikaan kävely- ja pyöräteiden yhdistäessä alueen puistot ja liikuntapaikat. Olemme keskittyneet tekemään asiakkaidemme työmatkapyöräilystä helppoa ja sujuvaa. Kiinteistön edessä on Alepa-kaupunkipyörä asema ja omat pyörät saa työpäivän ajaksi talteen parkkitaloon.
Kaikille on omat sosiaalitilat, joissa varusteet ehtivät kuivua ja pyöräilijät voivat helposti valmistautua edessä olevaan työpäivään.
Pyöräilysesongin alkaessa keväällä kiinteistö tarjoaa ilmaisen fillarihuollon asiakkaille. Muinakin aikoina Derby tarjoaa täysin ainutlaatuisen kyytipalvelun kaikille asiakkailleen ja heidän vierailleen. Täysin maksuton Ventoniemen minibussi kulkee GLO Hotel Sellon ja Derbyn väliä arkisin helpottaen työmatkalaisten arkea.
Täällä pääset nauttimaan erinomaisista palveluista, kuten suositusta ravintolasta, sauna- ja kokoontumistiloista sekä autopesusta. Merellisestä miljööstä on hyvät yhteydet palveluiden äärelle.
Kävely- ja pyörätiet yhdistävät alueen puistot sekä liikunta- ja leikkipaikat Vermonniitty ympäristöineen tarjoaa täydelliset mahdollisuudet aktiiviseen työaikaan kävely- ja pyöräteiden yhdistäessä alueen puistot ja liikuntapaikat. Olemme keskittyneet tekemään asiakkaidemme työmatkapyöräilystä helppoa ja sujuvaa. Kiinteistön edessä on Alepa-kaupunkipyörä asema ja omat pyörät saa työpäivän ajaksi talteen parkkitaloon.
Kaikille on omat sosiaalitilat, joissa varusteet ehtivät kuivua ja pyöräilijät voivat helposti valmistautua edessä olevaan työpäivään.
Pyöräilysesongin alkaessa keväällä kiinteistö tarjoaa ilmaisen fillarihuollon asiakkaille. Muinakin aikoina Derby tarjoaa täysin ainutlaatuisen kyytipalvelun kaikille asiakkailleen ja heidän vierailleen. Täysin maksuton Ventoniemen minibussi kulkee GLO Hotel Sellon ja Derbyn väliä arkisin helpottaen työmatkalaisten arkea.
Vapautuu
Kysy
Kerros
7
Ota yhteyttä
Juhola Asset Management Oy
Itsehallintokuja 4 02600 Espoo
Näytä puhelinnumero
040 4551 390
Leena Juhola
Pyydä lisätietoa
