Vuokrataan toimistotilat - Helsinki
Vallila-kortteli, Gebhardinaukio 1, Vallila, 00510 Helsinki #10808859
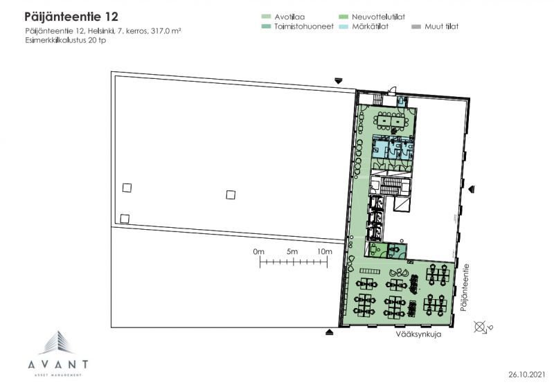
7. kerroksen siisti toimistohuoneisto upean avarilla maisemilla. Osoite Päijänteentie 12
Osoite
Gebhardinaukio 1, 00510 Helsinki
Tilatyyppi
Toimistotilaa
317 m2
Muuta
MODERNI PÄÄKONTTORITOIMISTO
Tämä OP:n pääkonttorina tunnettu toimistokortteli on moderni, vuosina 2015-2017 valmistunut JKMM Arkkitehtien suunnittelemana ja mm. LEED Gold -sertifikaatilla palkittu toimistorakennus. Arkkitehtonisesti upeat tilat ovat avaria ja valoisia, ja materiaalit parhaita mahdollisia. Palvelut rakennuksessa ovat erinomaiset, joista esimerkkeinä lounasravintoloita löytyy useita, aulapalvelu ja neuvotteluhuoneet ovat tasokkaita sekä myös kuntosali-, hieronta- ja kampaamopalvelut ovat työntekijöiden käytettävissä.
Toimitilat sijaitsevat osoitteissa Päijänteentie 12 ja Vääksyntie 2. Kohde on helposti saavutettavissa niin omalla autolla, julkisella liikenteellä kuin pyörälläkin. Metrolle kävelyä vain muutama minuutti ja työmatkapyöräilyyn kannustavat väljät ja siistit hygieniatilat. Kiinteistössä lämmin pysäköintihalli sekä autoille että pyörille.
Toimitilojen suunnittelussa on käytetty erityistä huomiota tilojen joustavuuteen ja materiaalien korkeaan laatuun. Vuokralaiset hyötyvät korttelin keskellä sijaitsevan galleriakerroksen mukavuuksista ja sen viidestä ravintolassa, jaettavista
neuvotteluhuoneista, kolmesta auditoriosta, Fressin ylläpitämästä kuntosalista, kampaajasta, hierojasta ja fysioterapeutista. Ratkaisut ilmanlaadun parantamiseksi ja luonnonvalon määrän lisäämiseksi edistävät terveyttä ja hyvinvointia tiloissa.
Vallilan alueella on ollut suuri merkitys Suomen teollistumisen historiassa. Nyt alue on jälleen uuden liiketoiminnan edelläkävijä ja kasvun keskus. Huippuluokan palvelutarjonta on taattu, koska Vallila kuuluu Suomen merkittävimpään kehitysalueeseen, Pasila-Vallila-Kalasatama-akseliin, ja sen rajanaapurina ovat kaksi dominoivaa ostoskeskusta, Tripla ja Redi, sekä valtava määrä uusia asuinrakennuksia. Ympäröivät asuinalueet houkuttelevat erityisesti nuoria huippuammattilaisia.
Kiinteistö hyötyy erinomaisista julkisen liikenteen yhteyksistä, mukaan lukien lähes kaikki
kulkumuodot, ja se sijaitsee vain 2,5 km tai kahden metropysäkin päässä Helsingin keskustasta. Kiinteistöllä on suuri maanalainen pysäköintikapasiteetti, johon on helppo pääsy lähellä sijaitsevien pääteiden ansiosta.
Kiinteistö on kehitetty alusta alkaen tinkimättömällä sitoutumisella kestävyyteen, ja se on saanut LEED Gold -sertifioinnin. Sen elinkaaren hiilijalanjälki on arvioitu ja otettu huomioon esimerkiksi materiaalivalinnoissa ja purkumateriaalien kierrätyksessä.
Parhaillaan käynnissä olevan kestävän investointitutkimuksen tavoitteena on parantaa
energiatehokkuusluokitusta ("EPC") ja varmistaa asema kaikkien Helsingin toimistokiinteistöjen 10 %:n joukossa EPC:n suhteen.
Kattavien julkisen liikenteen mahdollisuuksien lisäksi lämmin maanalainen polkupyörähalli ja laadukkaat saniteettitilat tukevat pyöräilyä vaihtoehtoisena liikkumismuotona ja siten myös vuokralaisten hyvinvointia. Tiivis kaupunkiympäristö yhdistettynä kiinteistön valikoimaan palveluita edistää autottomuutta ja vähentää liikkumiseen liittyviä päästöjä.
Tilojen valaistus on varustettu älykkäillä antureilla, jotka valaisevat yhden ryhmän kerrallaan riippuen siitä, miten tiloja käytetään. Kaikki vuokrattavat tilat on varustettu LED-valaistuksella. Tiloissa on lämpötila-antureita, jotka ovat yhteydessä rakennusautomaatioon ja pitävät olosuhteet halutuissa raja-arvoissa. Ilmanvaihto toimii aikataulujen mukaisesti, ja kokoushuoneissa on hiilidioksidin mittausantureita, jotka lisäävät ilmanvaihtoa, kun raja-arvot ylittyvät.
Tämä OP:n pääkonttorina tunnettu toimistokortteli on moderni, vuosina 2015-2017 valmistunut JKMM Arkkitehtien suunnittelemana ja mm. LEED Gold -sertifikaatilla palkittu toimistorakennus. Arkkitehtonisesti upeat tilat ovat avaria ja valoisia, ja materiaalit parhaita mahdollisia. Palvelut rakennuksessa ovat erinomaiset, joista esimerkkeinä lounasravintoloita löytyy useita, aulapalvelu ja neuvotteluhuoneet ovat tasokkaita sekä myös kuntosali-, hieronta- ja kampaamopalvelut ovat työntekijöiden käytettävissä.
Toimitilat sijaitsevat osoitteissa Päijänteentie 12 ja Vääksyntie 2. Kohde on helposti saavutettavissa niin omalla autolla, julkisella liikenteellä kuin pyörälläkin. Metrolle kävelyä vain muutama minuutti ja työmatkapyöräilyyn kannustavat väljät ja siistit hygieniatilat. Kiinteistössä lämmin pysäköintihalli sekä autoille että pyörille.
Toimitilojen suunnittelussa on käytetty erityistä huomiota tilojen joustavuuteen ja materiaalien korkeaan laatuun. Vuokralaiset hyötyvät korttelin keskellä sijaitsevan galleriakerroksen mukavuuksista ja sen viidestä ravintolassa, jaettavista
neuvotteluhuoneista, kolmesta auditoriosta, Fressin ylläpitämästä kuntosalista, kampaajasta, hierojasta ja fysioterapeutista. Ratkaisut ilmanlaadun parantamiseksi ja luonnonvalon määrän lisäämiseksi edistävät terveyttä ja hyvinvointia tiloissa.
Vallilan alueella on ollut suuri merkitys Suomen teollistumisen historiassa. Nyt alue on jälleen uuden liiketoiminnan edelläkävijä ja kasvun keskus. Huippuluokan palvelutarjonta on taattu, koska Vallila kuuluu Suomen merkittävimpään kehitysalueeseen, Pasila-Vallila-Kalasatama-akseliin, ja sen rajanaapurina ovat kaksi dominoivaa ostoskeskusta, Tripla ja Redi, sekä valtava määrä uusia asuinrakennuksia. Ympäröivät asuinalueet houkuttelevat erityisesti nuoria huippuammattilaisia.
Kiinteistö hyötyy erinomaisista julkisen liikenteen yhteyksistä, mukaan lukien lähes kaikki
kulkumuodot, ja se sijaitsee vain 2,5 km tai kahden metropysäkin päässä Helsingin keskustasta. Kiinteistöllä on suuri maanalainen pysäköintikapasiteetti, johon on helppo pääsy lähellä sijaitsevien pääteiden ansiosta.
Kiinteistö on kehitetty alusta alkaen tinkimättömällä sitoutumisella kestävyyteen, ja se on saanut LEED Gold -sertifioinnin. Sen elinkaaren hiilijalanjälki on arvioitu ja otettu huomioon esimerkiksi materiaalivalinnoissa ja purkumateriaalien kierrätyksessä.
Parhaillaan käynnissä olevan kestävän investointitutkimuksen tavoitteena on parantaa
energiatehokkuusluokitusta ("EPC") ja varmistaa asema kaikkien Helsingin toimistokiinteistöjen 10 %:n joukossa EPC:n suhteen.
Kattavien julkisen liikenteen mahdollisuuksien lisäksi lämmin maanalainen polkupyörähalli ja laadukkaat saniteettitilat tukevat pyöräilyä vaihtoehtoisena liikkumismuotona ja siten myös vuokralaisten hyvinvointia. Tiivis kaupunkiympäristö yhdistettynä kiinteistön valikoimaan palveluita edistää autottomuutta ja vähentää liikkumiseen liittyviä päästöjä.
Tilojen valaistus on varustettu älykkäillä antureilla, jotka valaisevat yhden ryhmän kerrallaan riippuen siitä, miten tiloja käytetään. Kaikki vuokrattavat tilat on varustettu LED-valaistuksella. Tiloissa on lämpötila-antureita, jotka ovat yhteydessä rakennusautomaatioon ja pitävät olosuhteet halutuissa raja-arvoissa. Ilmanvaihto toimii aikataulujen mukaisesti, ja kokoushuoneissa on hiilidioksidin mittausantureita, jotka lisäävät ilmanvaihtoa, kun raja-arvot ylittyvät.
Vapautuu
Kysy
Rakennusvuosi
2017
Kerros
7
Ota yhteyttä
Juhola Asset Management Oy
Itsehallintokuja 4 02600 Espoo
Näytä puhelinnumero
040 4551 390
Leena Juhola
Pyydä lisätietoa
