Vuokrataan toimistotilat - Espoo
Säteri Business Park, Linnoitustie 3, Etelä-Leppävaara, 00260 Espoo #10808842
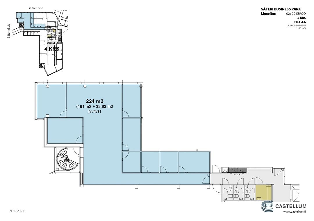
Vuokrataan neuvotteluhuoneella varustettu moderni toimistotila Säteri Business Parkin 4. kerroksen pientoimistoalueelta. Kerroksen asiakkaiden yhteisessä käytössä on keittiö, lounge ja wc-tilat.
Osoite
Linnoitustie 3, 00260 Espoo
Tilatyyppi
Toimistotilaa
224 m2
Muuta
Vuosina 2001-2012 valmistunut Säteri Business Park koostuu kahdesta rakennuksesta: Linnoituksesta ja Säteristä. Säteri Business Parkin avarat pohjaratkaisut mahdollistavat monenlaiset tilaratkaisut. Molempien sisäänkäyntien yhteydessä palvelee aulapalvelu ja business parkin kattavat palvelut ovat molempien rakennusten asiakkaiden käytössä.
Säteri Business Park koostuu kahdesta toimistotalosta; Linnoituksesta ja Säteristä sekä maanalaisesta parkkihallikerroksesta. Muunneltavien tilojen ansiosta samaan kerrokseen mahtuu yksi tai useampi yritys sekä neuvottelu- ja toimistohuoneita. Osassa Säterin toimistokerroksia on oma parveke ja avara näkymä lasiseinien läpi atrium-aulaan.
Säteri-talon aulan yhteydessä on myös lounasravintola ja kampaamo. Ylimmästä kerroksesta löytyy laadukas kuntosali saunatiloineen sekä viihtyisät terassialueet. Linnoituksen puolelta löytyy myös aulapalvelun yhteydessä 24/7 kahvilapiste sekä ylimmän kerroksen edustava tapahtuma- ja kokoustila, jossa onnistuu tilaisuuksien järjestäminen jopa 100 hengelle. Molempien kiinteistöjen aula- ja loungetilat toimivat myös inspiroivana työtilana kiinteistön asiakkaille ja vieraille.
Säteri Business Park sijaitsee Leppävaaran modernissa Business Park -keskittymässä, keskeisellä paikalla Kehä I:n ja Leppävaaran juna-aseman läheisyydessä, joka mahdollistaa sujuvan työmatkailun niin omalla autolla kuin julkisilla kulkuneuvoillakin. Loistavat julkiset yhteydet täydentyivät entisestään Raide-Jokerin ansiosta.
Säteri Business Park koostuu kahdesta toimistotalosta; Linnoituksesta ja Säteristä sekä maanalaisesta parkkihallikerroksesta. Muunneltavien tilojen ansiosta samaan kerrokseen mahtuu yksi tai useampi yritys sekä neuvottelu- ja toimistohuoneita. Osassa Säterin toimistokerroksia on oma parveke ja avara näkymä lasiseinien läpi atrium-aulaan.
Säteri-talon aulan yhteydessä on myös lounasravintola ja kampaamo. Ylimmästä kerroksesta löytyy laadukas kuntosali saunatiloineen sekä viihtyisät terassialueet. Linnoituksen puolelta löytyy myös aulapalvelun yhteydessä 24/7 kahvilapiste sekä ylimmän kerroksen edustava tapahtuma- ja kokoustila, jossa onnistuu tilaisuuksien järjestäminen jopa 100 hengelle. Molempien kiinteistöjen aula- ja loungetilat toimivat myös inspiroivana työtilana kiinteistön asiakkaille ja vieraille.
Säteri Business Park sijaitsee Leppävaaran modernissa Business Park -keskittymässä, keskeisellä paikalla Kehä I:n ja Leppävaaran juna-aseman läheisyydessä, joka mahdollistaa sujuvan työmatkailun niin omalla autolla kuin julkisilla kulkuneuvoillakin. Loistavat julkiset yhteydet täydentyivät entisestään Raide-Jokerin ansiosta.
Vapautuu
Kysy
Rakennusvuosi
2001
Kerros
4
Ota yhteyttä
Juhola Asset Management Oy
Itsehallintokuja 4 02600 Espoo
Näytä puhelinnumero
040 4551 390
Leena Juhola
Pyydä lisätietoa
