Vuokrataan toimistotilat - Espoo
Mänkimiehentie 4, Kauklahti, 02780 Espoo #10808772
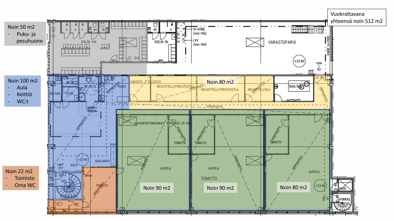
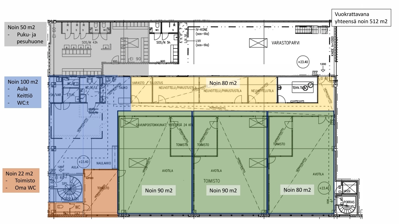
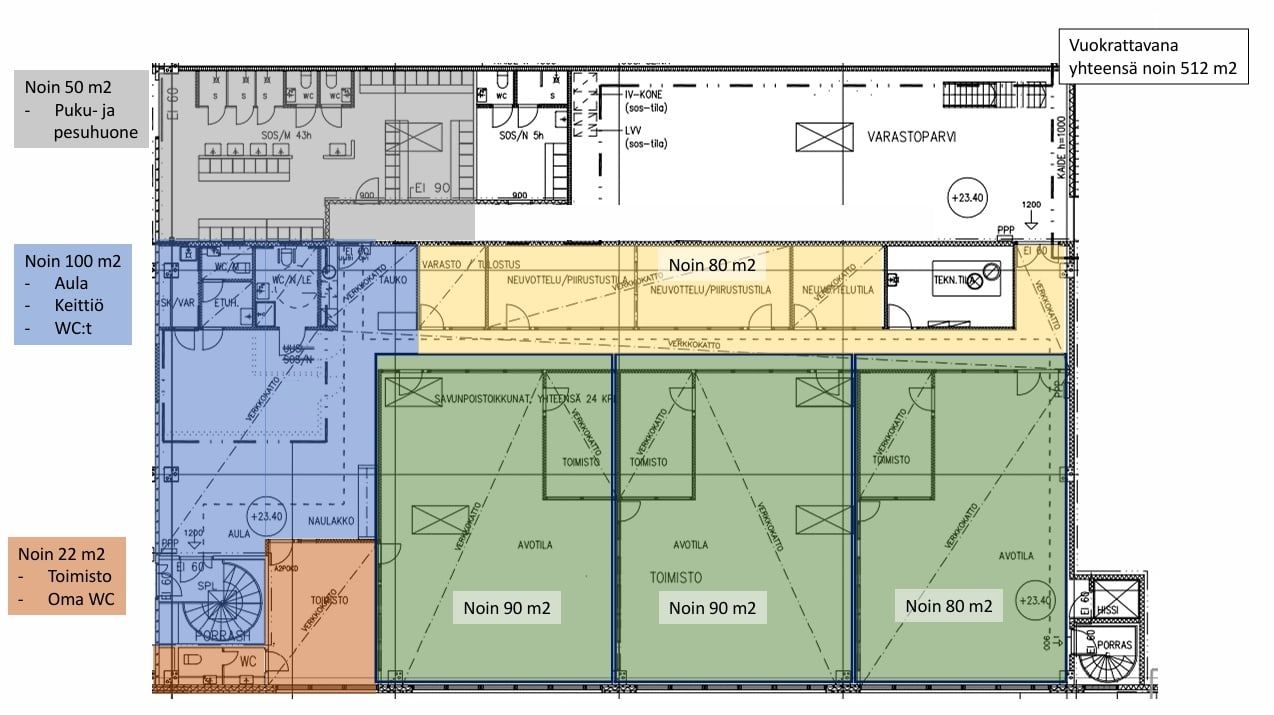
Erittäin siisti, noin kaksi vuotta sitten remontoitu toimistotila hyvillä liikenneyhteyksillä. Tilaan kuuluu kolme avotilaa sekä seitsemän työ- ja neuvotteluhuonetta. Toimiston sisääntulon aulaan on helppo luoda viihtyisä taukotila, ja myös keittiössä ruokailu onnistuu saarekkeen äärellä. Samasta kerroksesta löytyvät myös pukuhuone- ja suihkutilat. Tarvittaessa tavarakuljetuksia varten on käytössä myös lastauslaituri.
Toimisto voidaan myös jakaa esimerkisi kolmelle noin 100 m² käyttäjälle, jolloin sosiaalitilat ja keittiö olisivat yhteiskäytössä.
Mänkimiehentie 4 sijaitsee Espoon Kauklahden teollisuusalueella. Vuokrattavana oleva varasto-osa on rakennettu 1997 ja toimisto 1990, jonka jälkeen toimisto on peruskorjattu pari vuotta sitten nykyaikaiseksi. Samassa kiinteistössä toimii myös konevuokraamo ja talotekniikka-alan yritys. Sijainti Espoon länsiosassa, Kauklahdessa on erinomainen. Hyvät liikenneyhteydet Kehä III:a pitkin kaikille pääväylille, erityisesti Turuntielle ja Länsiväylälle. Ajoaika lentoasemalle on alle puoli tuntia ja juna-asemalle kävelymatka noin 900 m ja bussipysäkille noin 500 metriä.
Me Croisettella autamme teitä löytämään teille parhaat tilat! Olemme puolueettomia asiantuntijoita ja tunnemme toimitilamarkkinat, talot sekä tilat vankalla kokemuksella. Meillä on välityksessä kaikki toimitilat ja tiedämme niiden alustavat vuokratasot.
Tehtävämme on tehdä toimitilahaustanne onnistunut ja helppo. Saamme palkkiomme kiinteistönomistajalta, joten sinulle palvelumme on täysin maksuton.
Hissi
Croisette Real Estate Partner
Erottajankatu 5 A 6, 00130 Helsinki
Näytä puhelinnumero
+358 400 585 857
Croisette Vuokraus
Näytä puhelinnumero
+358400585857
