Vuokrataan toimistotilat - Helsinki
Pieni Roobertinkatu 11, Keskusta, 00130 Helsinki #10808727
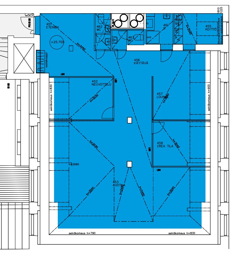
Vuokrataan 4. kerroksen tyylikäs toimistotila. Avarassa ja valoisassa tilassa on avotilaa, keittiö, pari työhuonetta, sekä wc-tilat.
Alueella on paljon hyviä lounasravintoloita ja ratikkapysäkki on ihan vieressä. Autoilijoille vuokrattavissa pysäköintipaikkoja Pikku Erottajan hallista.
Lisätietoja soita 020 730 4530 tai info@repoint.fi. Palvelumme on tilanhakijalle ilmainen.
Osoite
Pieni Roobertinkatu 11, 00130 Helsinki
Tilatyyppi
Toimistotilaa
173 m2
Vapautuu
Kysy
Kerros
4
Ota yhteyttä
Repoint Toimitilat Oy
Itälahdenkatu 22 B, 00210 Helsinki
Näytä puhelinnumero
020 730 4530
Lisätietoja soita Näytä puhelinnumero 020 730 4530 tai info@repoint.fi
https://repoint.fi/Pyydä lisätietoa
