Vuokrataan toimistotilat - Espoo
Keilalahdentie 2-4, Keilaniemi, 02150 Espoo #10808686
Laadukasta toimistotilaa merinäköalalla ja erinomaisella saavutettavuudella.
Osoite
Keilalahdentie 2-4, 02150 Espoo
Tilatyyppi
Toimistotilaa
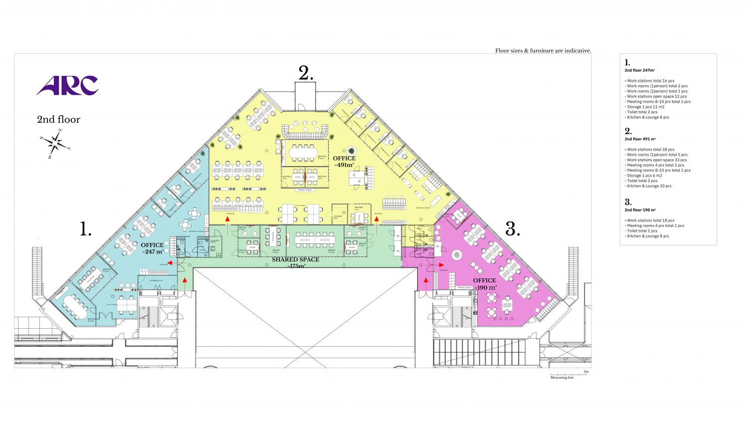
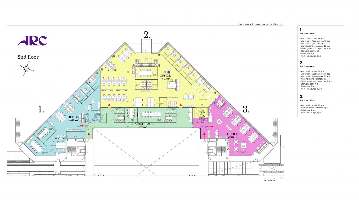
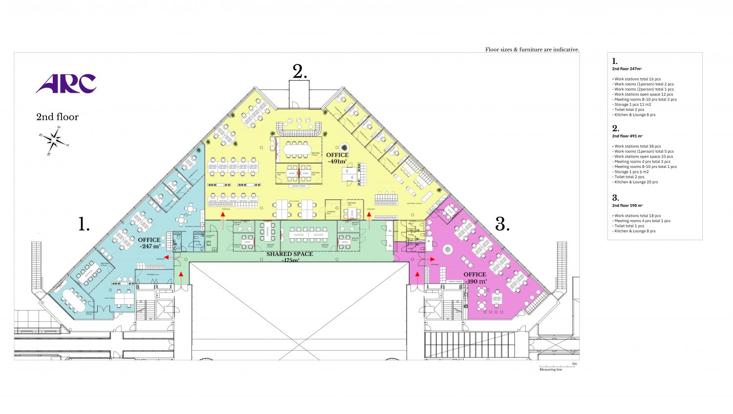
491 m2
Pohjapiirros
Sijainti
Keilaniemen yhä kehittyvä alue tarjoaa huippuluokan toimistotilaa erinomaisella sijainnilla. ARC tarjoaa monipuoliset palvelut sekä eloisan ympäristön. Tällä kiinteistöllä työntekoa ei nähdä ainoastaan toimistokopissa istumisena vaan toimivana ja dynaamisena osana elämää.
Vapautuu
Heti vapaa
Kerros
2
Energiatehokkuusluokka
C
Hissi
Ota yhteyttä
Croisette Real Estate Partner
Erottajankatu 5 A 6, 00130 Helsinki
Näytä puhelinnumero
+358 400 585 857
Croisette Vuokraus
Näytä puhelinnumero
+358400585857
Pyydä lisätietoa
