Vuokrataan toimistotilat - Helsinki
Valimotie 25 A, Pitäjänmäki, 00380 Helsinki #10808617
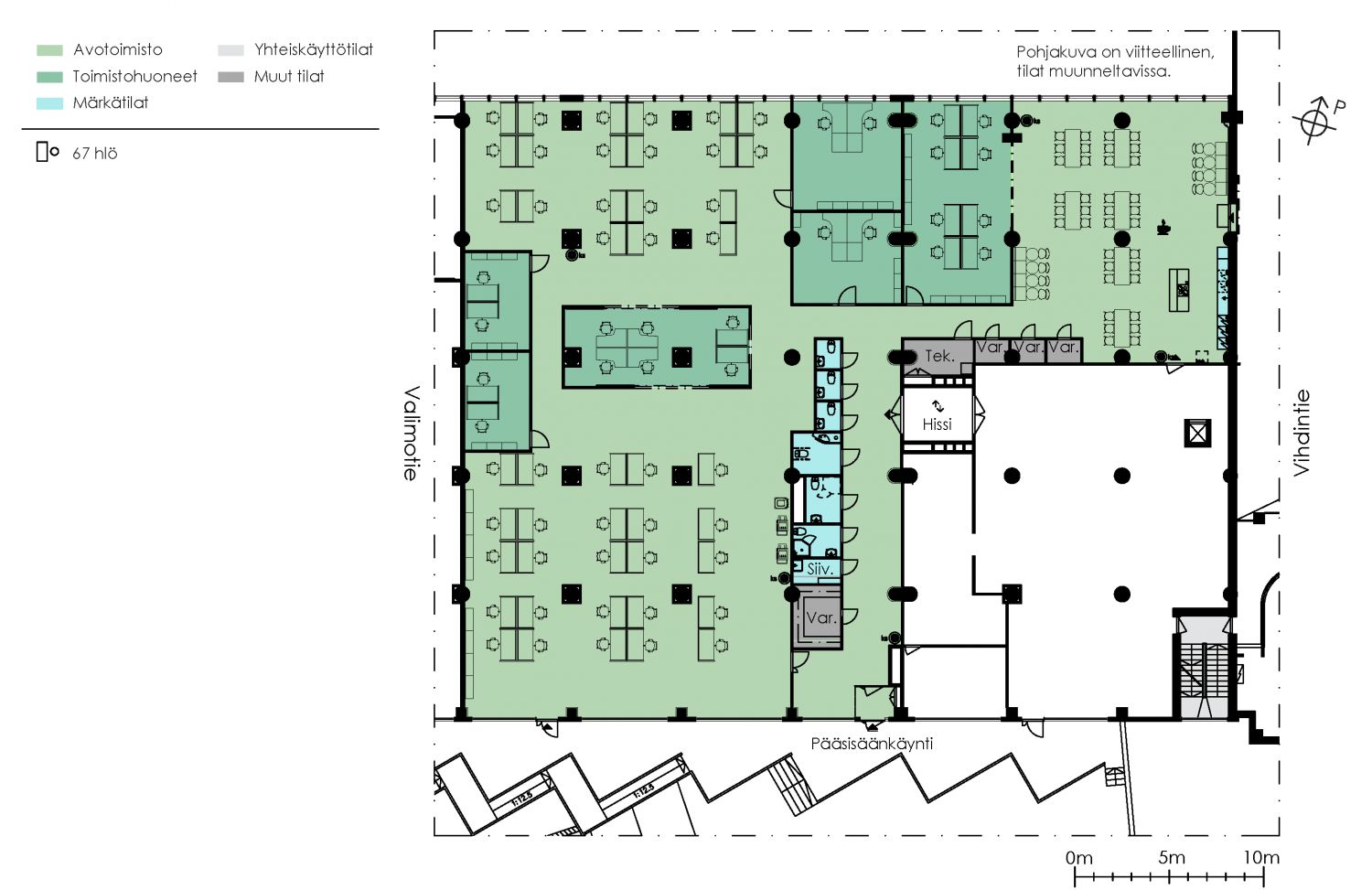
Siistiä toimitilaa juna-aseman tuntumassa. Avonaisesta tilasta voi muokata käyttötarkoitusta parhaiten palvelevan tilan. Tilaan oma kulku pysäköintikannelta.
Osoite
Valimotie 25 A, 00380 Helsinki
Tilatyyppi
Toimistotilaa
982 m2
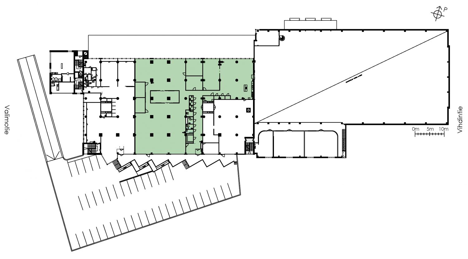
Pohjapiirros
Kiinteistö
Toimitiloja Pitäjänmäen teollisuusalueella
Valimotie 25 sijaitsee hyvällä paikalla Valimon aseman vieressä. Kohteessa on vuokrattavana erikokoisia toimisto- ja varastotiloja tavarahissillä ja lastauslaiturilla.
Valimotie 25 sijaitsee hyvällä paikalla Valimon aseman vieressä. Kohteessa on vuokrattavana erikokoisia toimisto- ja varastotiloja tavarahissillä ja lastauslaiturilla.
Sijainti
Kohde on hyvin saavutettavissa sekä omalla autolla että julkisilla kulkuneuvoilla. Kiinteistö sijaitsee 150 m päässä Valimon juna-asemalta.
Pysäköinti
Autopaikat kiinteistön parkkihallissa
Palvelut
Merkkituotteiden outlet-myymälä, ravintolapalveluita, vähittäiskauppa, autopesula.
Kulkuyhteydet
Lähimmälle bussipysäkille 150 m
Lähimmälle juna-asemalle 250 m
Lentokentälle 15 min
Lähimmälle juna-asemalle 250 m
Lentokentälle 15 min
Vapautuu
Kysy
Rakennusvuosi
1958
Kerros
2
Energiatehokkuusluokka
E2018
Ympäristöluokitus
RESB Global Sector Leader 2025
Ota yhteyttä
Sponda Oy
Yrjönkatu 29C, 00100 Helsinki
Näytä puhelinnumero
020 43131
Anna Puhtila
Senior Manager, Value Add Portfolio
Näytä puhelinnumero
+358 50 407 9601
Sponda Oy
https://www.sponda.fiPyydä lisätietoa
