Myydään toimistotilat, liiketilat, näyttelytilat, varastotilat, muut tilat - Jyväskylä
Konttisentie 8D, 40800 Jyväskylä #10808590
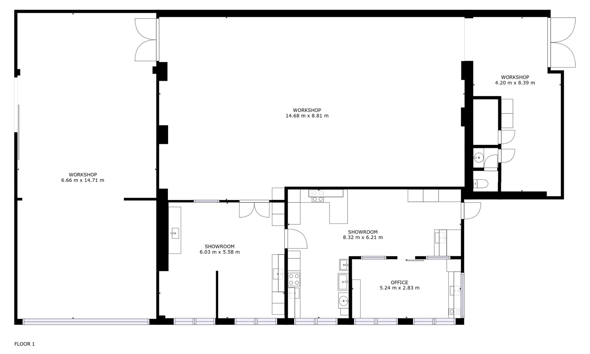
Myydään n. 273m2-kokoisen, monikäyttöisen liiketilan osakekanta Vaajakosken vanhasta naulatehtaasta.
Liiketila sijaitsee kiinteistöllä 179-406-2-495.
Siisti katutason tila, joka soveltuu näyttely / showroom ja/tai toimistotilaksi ja jossa on näiden lisäksi myös valmistus / varastotilaa. Idyllinen entinen Vaajakosken naulatehtaan kiinteistö. Tilan edessä hyvin pysäköintitilaa. Tila on palvellut aiemmin mm. keittiömyymälänä ja parturialan tukkuliikettä.
Tilaan on lastaussilta yhteys. Tilassa led-valot, voimavirtaa, osa väliseinistä kevyt rakenteisia, joten poistettavissa. Tila on yhdistettävissä viereiseen karting centerin tilaan, joka vapautuu vuoden vaihteessa. Keittiö / taukotila, oma wc ja siivouskomero.
Lisätiedot ja näytöt:
Henri Kumpulainen, 040 864 3631, henri.kumpulainen@aveon.fi
Katutasossa
Aveon Real Estate Oy
Kauppakatu 18 C 26, 40100 Jyväskylä
Henri Kumpulainen
Puh.
Näytä puhelinnumero
040 864 3631
henri.kumpulainen@aveon.fi
Olemme kiinteistöliiketoiminnan asiantuntija, joka toimii yrittäjämäisesti neuvonantajana kiinteistökaupoissa, toimitilavälittämisessä sekä kiinteistökehityksessä.
Asiakkaitamme ovat kotimaiset ja ulkomaiset kiinteistönomistajat, -sijoittajat sekä tilojen käyttäjät kaikkialla Suomessa.
