Vuokrataan toimistotilat - Espoo
Keilalahdentie 2-4, Keilaniemi, 02150 Espoo #10808578
Alunperin Nokian pääkonttoriksi suunniteltu korkeatasoinen toimistokeskus Keilaniemen ARC.
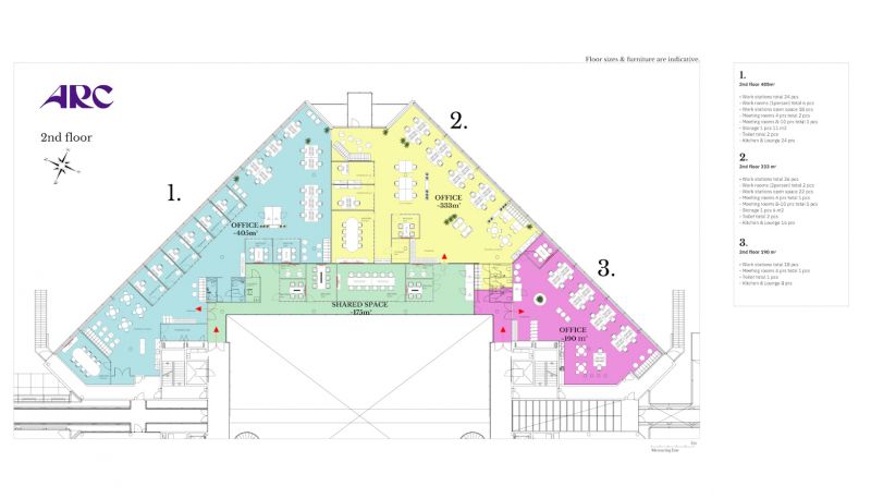
Heti vuokrattavissa yhdessä tasossa ensiluokkaista toimistotilaa jopa 2.300m2 (5krs), puolikas kerros on 1.150m2. Kakkoskerros on jaettavissa myös pienempiin osiin alkaen 200m2, (katso tarkemmin liitteen pohjakuvista). Tilat muokataan käyttäjille sopiviksi monitilatoimistoiksi. Talon vuokralaisilla on käytettävissä poikkeuksellisen hyvät oheispalvelut, myös pysäköintitilaa on runsasti saatavilla. Ota yhteyttä ja sovi esittely, vuokrauspalvelumme on tilanhakijoille maksuton.
- ravintolat
- kahvila
- catering
- 24/7 ravintolakioski
- auditorio
- neuvottelukeskus
- co-working alue
- saunaosasto
- kuntosali
- kattoterassi
- tapahtumapalvelu
- viihtymisalueet
Näkyvällä paikalla
Hissi
Senaatin Notariaatti Oy LKV
Lämmittäjänkatu 4 A
FIN-00880 Helsinki
Tel:
Näytä puhelinnumero
+358 9 7745 100
