Vuokrataan toimistotilat - Helsinki
Opus Business Park - Opus 2, Hitsaajankatu 22, Herttoniemi, 00810 Helsinki #10808562
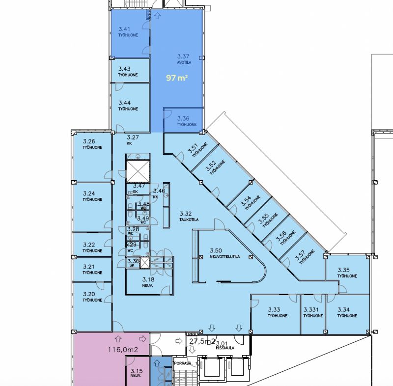
Laadukas 97 m² pientoimisto Business Park -ympäristössä Herttoniemessä.
Osoite
Hitsaajankatu 22, 00810 Helsinki
Tilatyyppi
Toimistotilaa
97 m2
Pohjapiirros
Kiinteistö
Toimisto vuokrattavana kolmannen kerroksen pientoimistoalueella Opus Business Parkissa. Alueen yrityksillä on yhteinen keittiö, wc-tilat ja ilmaisessa käytössä olevat kaksi neuvotteluhuonetta, joista lisätään jyvitys ilmoitettuun neliömäärään.
Kiinteistön monipuoliset palvelut ja keskeinen sijainti Helsingin Herttoniemessä helpottavat arkea. Aulapalvelu, lounasravintola ja kuntosali ovat muutamia esimerkkejä tarjolla olevista palveluista. Kiinteistö sijaitsee erinomaisella paikalla, kauppakeskus Hertsin välittömässä läheisyydessä.
Pientoimistojen kysyntä yleisesti on kovassa kasvussa. Niinpä Opukseenkin on rakennettu useampi pientoimistoalue, joissa pienemmillä yrityksillä on oma toimistotila ja muiden yritysten kanssa jaetut edustavat aula- ja neuvottelutilat, keittiö ja sosiaalitilat. Pientoimistoille tarjolla myös käyttöoikeussopimuksia.
Pientoimistoasiakkaiden palvelupakettiin kuuluu:
- Aulapalvelu
- Postipalvelu
- Kahvit ja teet
- Pientoimistoalueen neuvottelutilojen käyttö
Opus Business Park on yrityksille loistava paikka toimia suurimpien ruuhka-alueiden ulkopuolella ja helposti saavutettavissa, Itäväylän varrella, aivan metroaseman lähettyvillä. Yrityspuiston kolme rakennusta sijoittuvat kodikkaasti rakentuvaa Hertsin lähipalvelukeskusta vastapäätä sekä Herttoniemen alueen kaikkien palveluiden, asutuksen ja yhteyksien keskelle.
Kiinteistön monipuoliset palvelut ja keskeinen sijainti Helsingin Herttoniemessä helpottavat arkea. Aulapalvelu, lounasravintola ja kuntosali ovat muutamia esimerkkejä tarjolla olevista palveluista. Kiinteistö sijaitsee erinomaisella paikalla, kauppakeskus Hertsin välittömässä läheisyydessä.
Pientoimistojen kysyntä yleisesti on kovassa kasvussa. Niinpä Opukseenkin on rakennettu useampi pientoimistoalue, joissa pienemmillä yrityksillä on oma toimistotila ja muiden yritysten kanssa jaetut edustavat aula- ja neuvottelutilat, keittiö ja sosiaalitilat. Pientoimistoille tarjolla myös käyttöoikeussopimuksia.
Pientoimistoasiakkaiden palvelupakettiin kuuluu:
- Aulapalvelu
- Postipalvelu
- Kahvit ja teet
- Pientoimistoalueen neuvottelutilojen käyttö
Opus Business Park on yrityksille loistava paikka toimia suurimpien ruuhka-alueiden ulkopuolella ja helposti saavutettavissa, Itäväylän varrella, aivan metroaseman lähettyvillä. Yrityspuiston kolme rakennusta sijoittuvat kodikkaasti rakentuvaa Hertsin lähipalvelukeskusta vastapäätä sekä Herttoniemen alueen kaikkien palveluiden, asutuksen ja yhteyksien keskelle.
Pysäköinti
Pysäköintipaikkoja vuokrattavissa kiinteistön parkkihallista.
Vapautuu
Heti
Kerros
3 / 5
Energiatehokkuusluokka
Ei lain edellyttämää energiatodistusta
Näkyvällä paikalla
Hissi
Ota yhteyttä
ScanReal Oy LKV
Opus Business Park
Hitsaajankatu 24
00810 Helsinki
info@scanreal.fi
Puh:
Näytä puhelinnumero
020 730 8830
Sopivat toimitilat yhdellä otolla!
Kartoitamme toimitilatarpeesi ja etsimme yrityksellesi parhaiten sopivat vapaat toimitilat. Koska vuokranantajat maksavat palvelumme, on tämä yrityksellesi veloituksetonta.
OTA YHTEYTTÄ - SOVI NÄYTTÖ!
Kaikki kohteemme eivät ole netissä, kerro tilatarpeesi niin kartoitamme vaihtoehdot.
Palvelumme on tilanhakijalle ilmainen
Pyydä lisätietoa
