Vuokrataan toimistotilat, tuotantotilat, varastotilat, muut tilat - Jyväskylä
Vehkakatu 1, 40700 Jyväskylä #10808556
Vuokrataan tuotanto -/ toimistotilakokonaisuus, yhteensä n. 1550 m2 Savelasta. Savelan S-Marketin ja Nesteen välissä sijaitseva, vanha Granon tila on hyvällä paikalla ja soveltuu esimerkiksi valmistavan pienteollisuuden käyttöön. Kaavamuutoksen kautta tila soveltuu myös liiketilaksi.
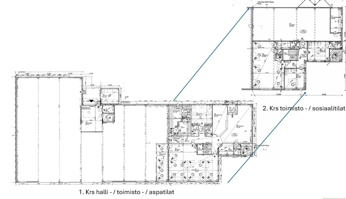
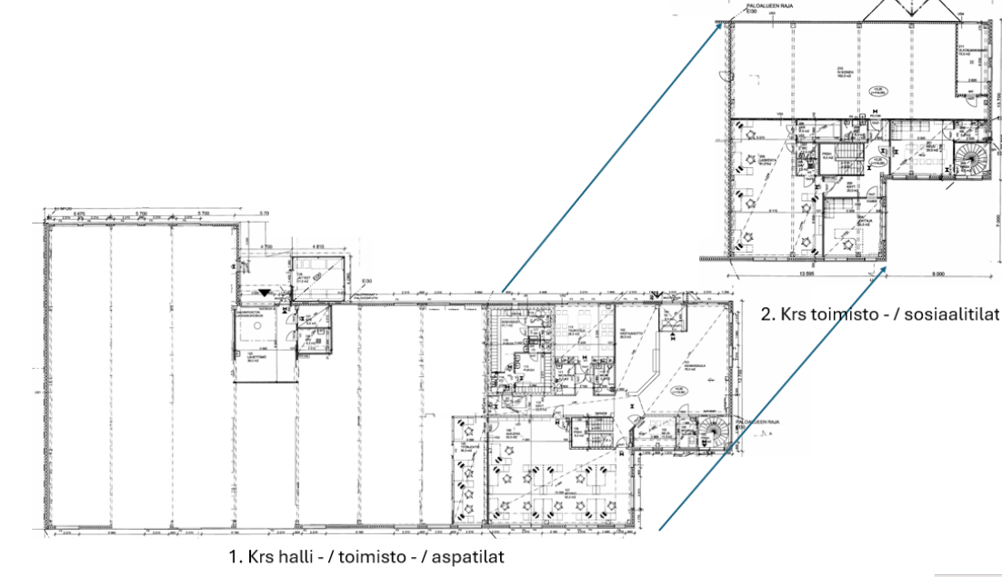
Hallitilaa kohteessa on katutasossa noin 900m2, ja hallitilan vapaa korkeus on n. 4 metriä. Nosto-ovellinen lähettämö-tila hallitilan yhteydessä, nosto-oven mitat n. 3 m x 3,5 m. Lisäksi kiinteistössä on kahdessa kerroksessa toimisto - / sosiaali- ja taukotilaa yhteensä noin. 650 m2. Autopaikkoja kiinteistöllä on noin 40 kappaletta. Kiinteistö on rakennettu 2000-luvulla, ja kiinteistössä on kaukolämpö.
Lisätiedot ja näytöt: Henri Kumpulainen, 040 864 3631, henri.kumpulainen@aveon.fi
Katutasossa
Näkyvällä paikalla
Aveon Real Estate Oy
Kauppakatu 18 C 26, 40100 Jyväskylä
Henri Kumpulainen
Puh.
Näytä puhelinnumero
040 864 3631
henri.kumpulainen@aveon.fi
Olemme kiinteistöliiketoiminnan asiantuntija, joka toimii yrittäjämäisesti neuvonantajana kiinteistökaupoissa, toimitilavälittämisessä sekä kiinteistökehityksessä.
Asiakkaitamme ovat kotimaiset ja ulkomaiset kiinteistönomistajat, -sijoittajat sekä tilojen käyttäjät kaikkialla Suomessa.
