Vuokrataan toimistotilat - Jyväskylä
Vuokrataan toimistotilaa Gummeruksenkadulta keskustasta, Gummeruksenkatu 6, Keskusta, 40100 Jyväskylä #10808554
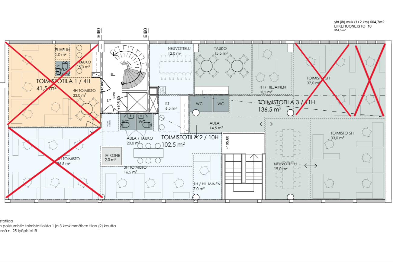
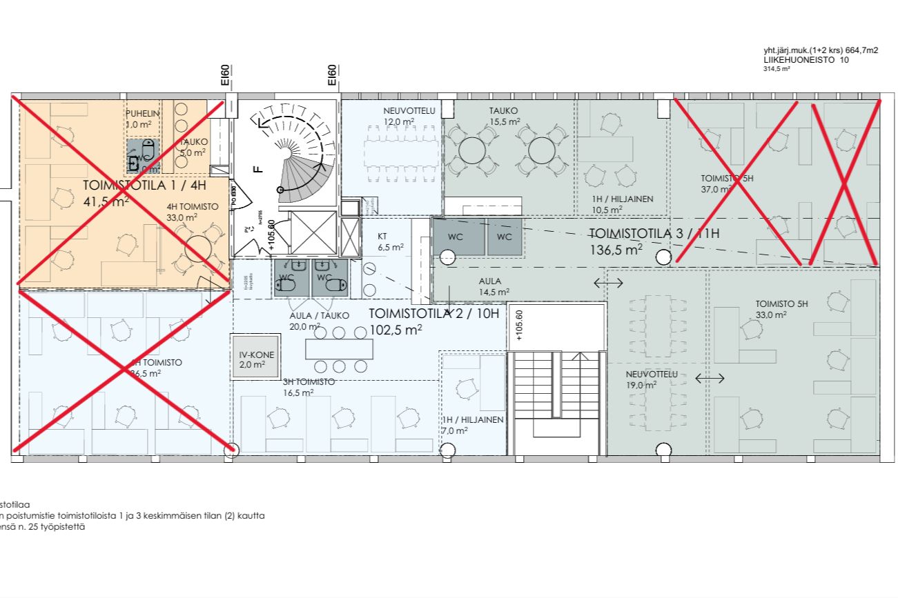
Vuokrataan Gummeruksenkadulta n. 33 - 200m2 toisen kerroksen toimistotilaa joustavilla pohjaratkaisuilla. Tiloja muokattavissa vuokralaisten tarpeiden mukaan, kts. mahdolliset pohjakuvaratkaisut / tilajaot kuvista. Toisen kerroksen toimistotiloista on mahdollista koostaa esimerkiksi useampi 3-6 hengen toimisto + 2 kpl neuvotteluhuoneita.
Sijainti keskeisellä paikalla, Kirkkopuiston ylälaidalla Gummeruksenkadulla. Samassa rakennuksessa toimii elektroniikkaliike. Katutasossa on vuokrattavana liiketilaa, ja pohjakerroksesta on vuokrattavana myös varasto - / tukikohtatilaa.
Näytöt ja lisätiedot: Henri Kumpulainen, Puh. 040 864 3631, henri.kumpulainen@aveon.fi
Näkyvällä paikalla
Jaettavissa
Aveon Real Estate Oy
Kauppakatu 18 C 26, 40100 Jyväskylä
Henri Kumpulainen
Puh.
Näytä puhelinnumero
040 864 3631
henri.kumpulainen@aveon.fi
Olemme kiinteistöliiketoiminnan asiantuntija, joka toimii yrittäjämäisesti neuvonantajana kiinteistökaupoissa, toimitilavälittämisessä sekä kiinteistökehityksessä.
Asiakkaitamme ovat kotimaiset ja ulkomaiset kiinteistönomistajat, -sijoittajat sekä tilojen käyttäjät kaikkialla Suomessa.
