Vuokrataan varastotilat - Espoo
Hyttimestarintie 6, Kauklahti, 02780 Espoo #10808550
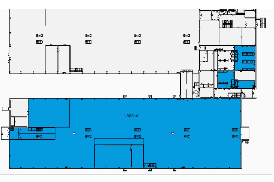
Vuokrataan pilariton kokonainen hallivarastotila, jossa yksi lastaustasku ja maantason nosto-ovi toisessa päädyssä. Remontoitavissa uuden käyttäjän tarpeisiin.
Sisältää sosiaalitiloja ja läpivirtaava halli + oheistilat Kauklahden teollisuusalueella.
Julkisivultaan rujo halli, mutta sisätilat perussiistit ja hallissa pilariton rakenne mahdollistaa monen eri käytön. Reilut pihat. Vapaakorkeus 6 metriä. Lastaustaskuja mahdollista lisätä.
Kiinteistö sijaitsee kävelymatkan päässä Kauklahden asemasta lähellä Kehä III ja Kauklahdenväylää. Kiinteistössä on kahden päähallin lisäksi toimistotilaa toisessa kerroksessa ja pienempiä varastotiloja katutasossa sekä lounasravintola. Reilut pihatilat, jossa hyvin autopaikkoja.
Lisätietoja ja kohde-esittelyt numerosta 020 7290 710.
Kohteella ei ole lain edellyttämää energiatodistusta tai energialuokka ei tiedossa
Lisää kohteita premises.fiKerros: 1
CRE PREMISES
Puh. Näytä puhelinnumero 020 7290 710
Vantaankoskentie 14
01670 VANTAA
