Vuokrataan - Espoo
Keilalahdentie 2-4, Keilaniemi, 02150 Espoo #10808391
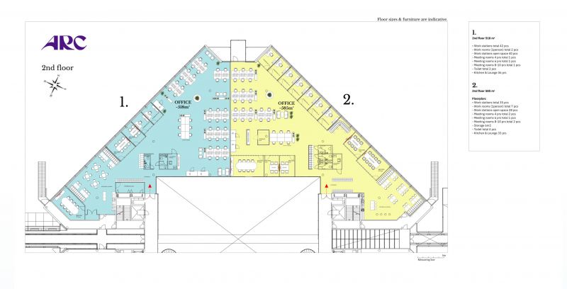
Vuokrataan 518m2 merinäköalalla varustettu moderni toimistotila, joka tarjoaa erinomaisen mahdollisuuden yrityksellesi luoda inspiroiva ja tehokas työympäristö. Tila sijaitsee kiinteistön 2. kerroksessa ja remontoidaan täysin tarpeisiinne sopivaksi.
Tilat sisältävät:
• Peruslaadun mukaisesti varustetun taukokeittiön
• Muokattavat neuvottelu- ja työhuoneet.
• Mahdollisuuden valita valmiiksi suunniteltu tilakonsepti tai suunnitella tila räätälöidysti
Tarpeen mukaan tilakoot ovat yhdistettävissä viereisiin toimistotiloihin, mikä tekee kokonaisuudesta joustavan kasvavan yrityksen tarpeisiin.
Vuokralaisilla on käytössään yhteinen, suunnitteilla oleva neuvottelukeskus samassa kerroksessa. Keskus tarjoaa monipuolisia neuvottelu- ja työskentelytiloja asiakastapaamisiin, etäpalavereihin tai tiimityöskentelyyn.
Kysy lisää: jouko.raitanen@rhg.fi/0504695444
RHG Real Estate
Hämeenkatu 2 B20, 20500 Turku
Näytä puhelinnumero
020 734 4020
Jouko Raitanen
Näytä puhelinnumero
050 469 5444
