Vuokrataan toimistotilat - Helsinki
Erottajankatu 9-11, Kaartinkaupunki, 00130 Helsinki #10808340
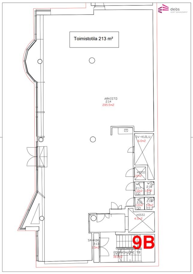
Vuokrataan sisäpihan puoleisesta 9 B-rapusta, 2. kerroksen avotoimistotilaa n. 213m2, jossa lähes koko ulkoseinän pituudelta ikkunoita sisäpihan terassille. Tilassa on avokeittiö ja kaksi wc:tä.
Osoite
Erottajankatu 9-11, 00130 Helsinki
Tilatyyppi
Toimistotilaa
213 m2
Muuta
Kiinteistöosakeyhtiö Erottajankatu 9-11 on arkkitehti Valter Thomén ja veljekset Udd vuonna 1909 suunnittelema ja vuonna 1912 valmistunut Jugend vaikutteinen arvokiinteistö yhdellä Helsingin arvostetuimmista sijainneista. Piharakennus ja kadunpuoleisen rakennuksen peruskorjaus tehtiin arkkitehti Jan Söderlundin suunnitelmien mukaan vuosina 1985-1988.
Alunperin Asunto-osakeyhtiö Skillnadsgatan 9:n rakennuttama myöhäisjugendvaikutteinen viisikerroksinen rakennus oli asuintalo, jossa oli neljä asuntoa. Pohjakerros oli varattu liiketiloja varten, toinen kerros oli tohtori Björkheimin, kolmas tohtori Stockmannin, neljäs tohtori Grönholmin ja viides pankinjohtaja Wasastjernan asuinkerros. Nykyisin kiinteistöllä sijaitsevat rakennukset tarjoavat monenlaisia toimitiloja yhdessä Helsingin arvostetuimmista osoitteista.
Kolmikulmaa (ruots. Trekanten) eli kansankielellä Dianapuistona tunnettua suorakulmaista, kolmion muotoista puistoa rajoittavat Yrjönkatu, Uudenmaankatu ja Erottajankatu. Puistoa on merkittävästi uudistettu vuosina 2006 ja 2007 ja sen laidalta on nykyisin ajoyhteys Erottajan pysäköintihalliin. Kolmikulma sijaitsee kolmen kaupunginosan kohtaamispisteessä: Puisto kuuluu Kaartinkaupungin kaupunginosaan, mutta heti korttelin lounaispuolella on Punavuoren kaupunginosa ja luoteispuolella Kampin kaupunginosa. Puiston kolmiomaisuus johtuu sen sijainnista kahden erisuuntaisen ruutukaava-alueen rajalla. Sen itäpuolella, muun muassa Kaartinkaupungissa, kadut kulkevat likipitäen pääilmansuuntien mukaisesti, mutta länsipuolella, Kampissa ja Punavuoressa, katujen suunnat poikkeavat pääilmansuunnista noin 30 astetta.
Korttelia ympäröivät talot on rakennettu pääsääntöisesti 1800-luvun lopulla ja 1900-luvun alussa. Dianapuiston pohjoispuolella olevassa talossa toimi pitkään Tullihallitus. Yrjönkadulla puiston kohdalla toimi 25 vuotta elokuvateatteri Diana ja sittemmin elokuvateatteri nimellä Lasten Cinema. Samassa tilassa toimii ruotsinkielinen lastenteatteri Unga Teatern. Ydinkeskustan kaikki palvelut kävelyetäisyydellä.
Erottajan pysäköintilaitoksen sisäänkäynti sijaitsee Diana-puiston yhteydessä tarjoten n. 450 pysäköintipaikkaa. Raitiovaunupysäkki n. 100m, Rautatientorin metroasema ja bussit n. 400m.
Rakennusvuosi 1912-1986
Alunperin Asunto-osakeyhtiö Skillnadsgatan 9:n rakennuttama myöhäisjugendvaikutteinen viisikerroksinen rakennus oli asuintalo, jossa oli neljä asuntoa. Pohjakerros oli varattu liiketiloja varten, toinen kerros oli tohtori Björkheimin, kolmas tohtori Stockmannin, neljäs tohtori Grönholmin ja viides pankinjohtaja Wasastjernan asuinkerros. Nykyisin kiinteistöllä sijaitsevat rakennukset tarjoavat monenlaisia toimitiloja yhdessä Helsingin arvostetuimmista osoitteista.
Kolmikulmaa (ruots. Trekanten) eli kansankielellä Dianapuistona tunnettua suorakulmaista, kolmion muotoista puistoa rajoittavat Yrjönkatu, Uudenmaankatu ja Erottajankatu. Puistoa on merkittävästi uudistettu vuosina 2006 ja 2007 ja sen laidalta on nykyisin ajoyhteys Erottajan pysäköintihalliin. Kolmikulma sijaitsee kolmen kaupunginosan kohtaamispisteessä: Puisto kuuluu Kaartinkaupungin kaupunginosaan, mutta heti korttelin lounaispuolella on Punavuoren kaupunginosa ja luoteispuolella Kampin kaupunginosa. Puiston kolmiomaisuus johtuu sen sijainnista kahden erisuuntaisen ruutukaava-alueen rajalla. Sen itäpuolella, muun muassa Kaartinkaupungissa, kadut kulkevat likipitäen pääilmansuuntien mukaisesti, mutta länsipuolella, Kampissa ja Punavuoressa, katujen suunnat poikkeavat pääilmansuunnista noin 30 astetta.
Korttelia ympäröivät talot on rakennettu pääsääntöisesti 1800-luvun lopulla ja 1900-luvun alussa. Dianapuiston pohjoispuolella olevassa talossa toimi pitkään Tullihallitus. Yrjönkadulla puiston kohdalla toimi 25 vuotta elokuvateatteri Diana ja sittemmin elokuvateatteri nimellä Lasten Cinema. Samassa tilassa toimii ruotsinkielinen lastenteatteri Unga Teatern. Ydinkeskustan kaikki palvelut kävelyetäisyydellä.
Erottajan pysäköintilaitoksen sisäänkäynti sijaitsee Diana-puiston yhteydessä tarjoten n. 450 pysäköintipaikkaa. Raitiovaunupysäkki n. 100m, Rautatientorin metroasema ja bussit n. 400m.
Rakennusvuosi 1912-1986
Vapautuu
Kysy
Rakennusvuosi
1912
Kerros
2
Ota yhteyttä
Juhola Asset Management Oy
Itsehallintokuja 4 02600 Espoo
Näytä puhelinnumero
040 4551 390
Leena Juhola
Pyydä lisätietoa
