Vuokrataan toimistotilat - Helsinki
Holkkitie 8 B, Holkkitie 8, Roihupellon Teollisuusalue, 00880 Helsinki #10808335
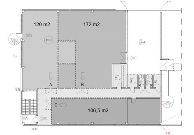
Vuokrattavissa toisen kerroksen toimisto-/työ-/näyttelytila Helsingin Roihupellon teollisuusalueella, lähellä Itäväylää
Osoite
Holkkitie 8, 00880 Helsinki
Tilatyyppi
Toimistotilaa
106,5 m2
Muuta
Holkkitie 8 sijaitsee Roihupellon teollisuusalueella, lähellä Itäväylää. Alueelle on hyvät liikenneyhteydet ja kiinteistön pihalla on pysäköintitilaa.
Roihupellon ja Itäkeskuksen palvelut lyhyen matkan päässä. Alueella toimii useita teollisen alan toimijoita ja muutamia lounasravintoloita.
Roihupellon ja Itäkeskuksen palvelut lyhyen matkan päässä. Alueella toimii useita teollisen alan toimijoita ja muutamia lounasravintoloita.
Vapautuu
Kysy
Kerros
2
Ota yhteyttä
Juhola Asset Management Oy
Itsehallintokuja 4 02600 Espoo
Näytä puhelinnumero
040 4551 390
Leena Juhola
Pyydä lisätietoa
