Vuokrataan toimistotilat - Helsinki
Aleksanterinkatu 15, Ydinkeskusta, 00100 Helsinki #10808265
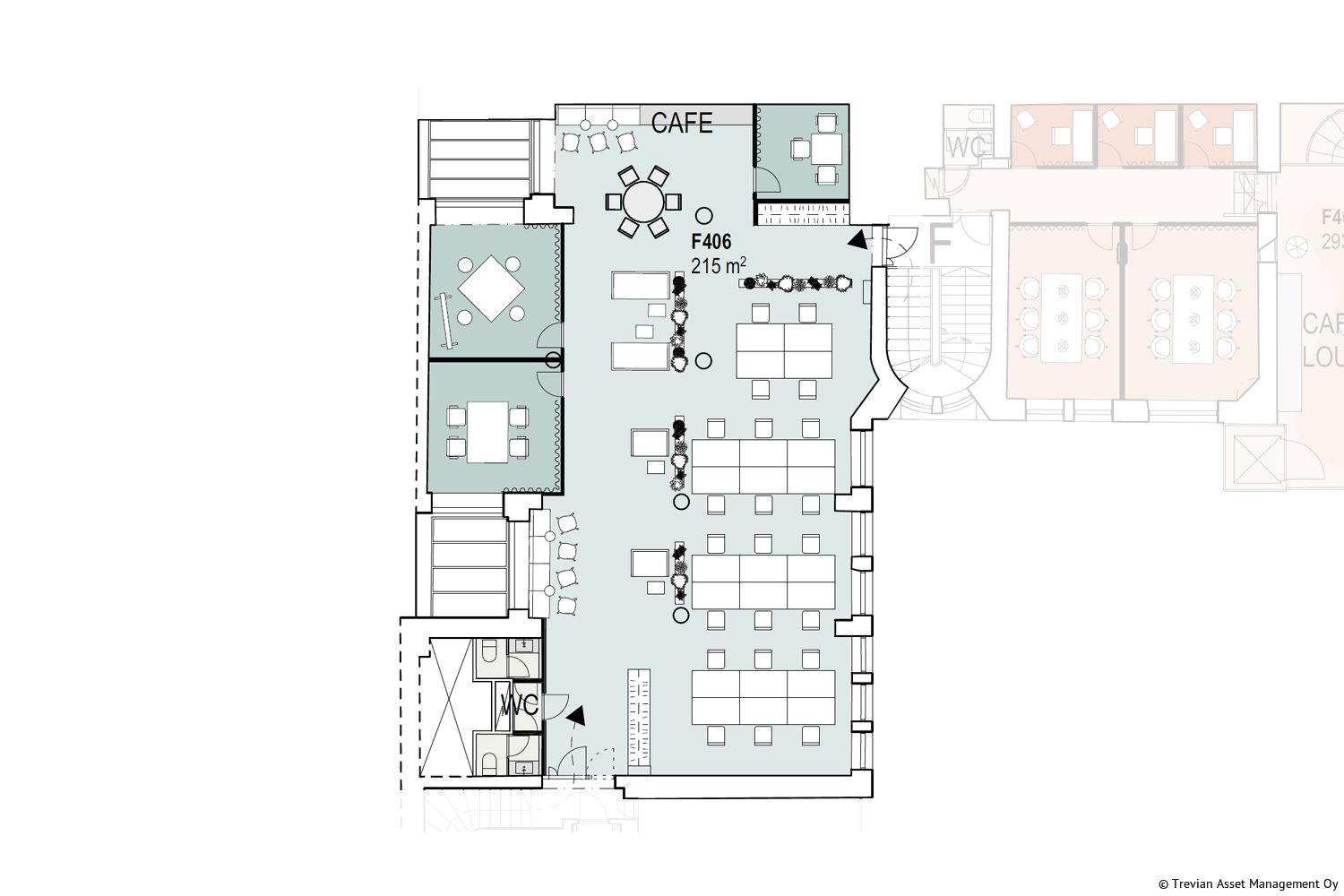
Modernia toimistotilaa klassisissa puitteissa – Aleksi 15
Vuokrataan Helsingin klassisimmalla sijainnilla toimistotilaa tämän päivän työskentelytarpeisiin. Tähän tilaan kulku tapahtuu Aleksi 15 A:n upean Atlas-oven ja porraskäytävän kautta. Tilaan on juuri tehty pintaremontti, ja se viimeistellään yhteistyössä tulevan vuokralaisen kanssa.
Sijainti on vertaansa vailla – keskustan palvelut ja monipuoliset lounasravintolat ovat vain askeleen päässä. Lisäksi julkisen liikenteen yhteydet ovat erinomaiset, ja talossa on oma autohalli.
Tervetuloa tutustumaan Aleksi 15:n tiloihin!
Trevian Asset Management Oy
Erottajankatu 2, 00120 Helsinki
Näytä puhelinnumero
010 581 3830
Helena Kangas
Näytä puhelinnumero
0400 717 698
Trevian Toimitilat
Näytä puhelinnumero
010 581 3830
Trevian Asset Management on suomalainen toimitiloihin keskittyvä kiinteistösijoitus- ja kiinteistövarainhoitopalveluja tuottava yritys, joka toimii Suomen markkinoilla. Trevianin omistavat yrityksen avainhenkilöt.
https://trevian.fi