Vuokrataan toimistotilat - Espoo
Kutojantie 11, Nihtisilta, 02630 Espoo #10808234
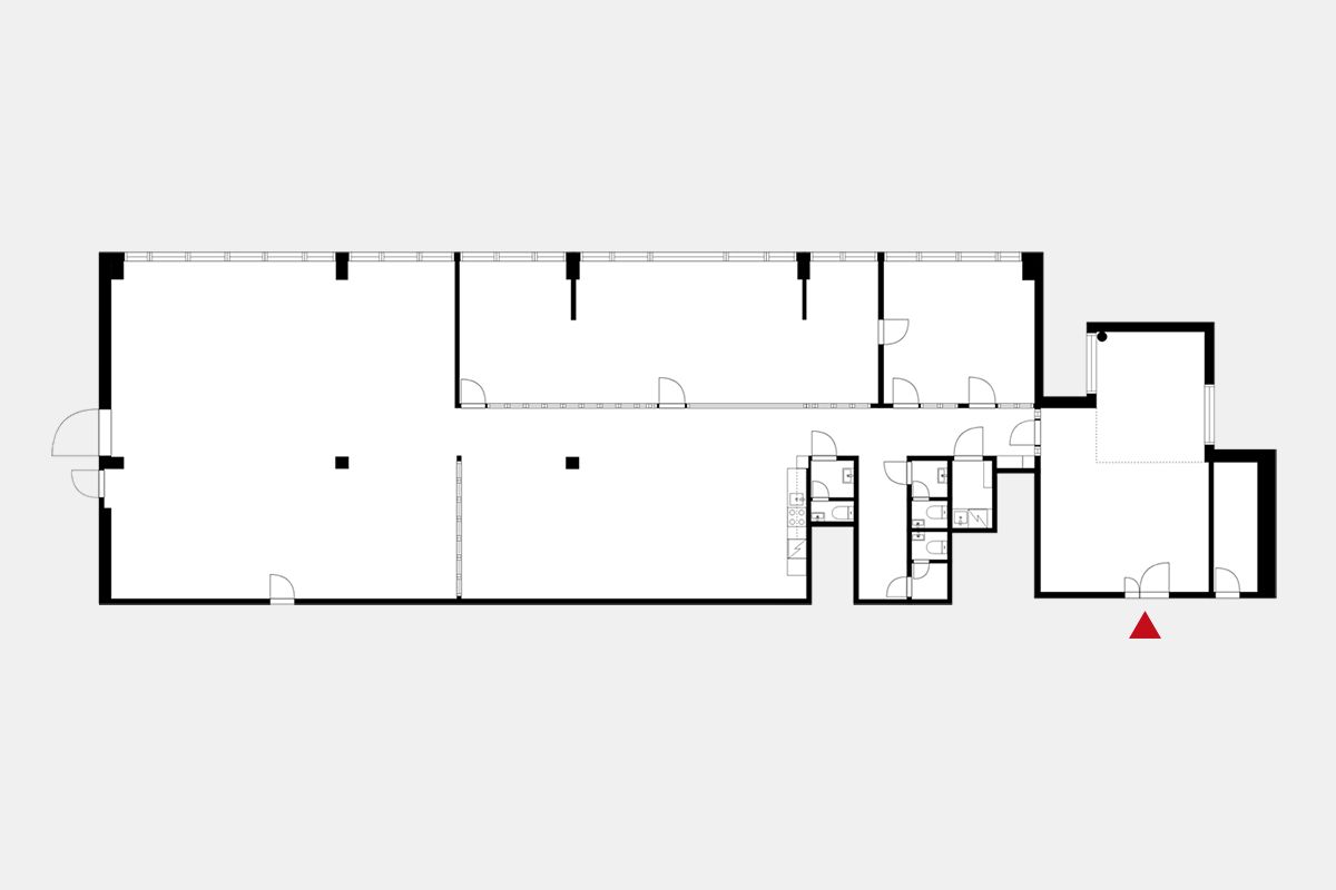
Avara toimistotila kiinteistön ylimmässä kerroksessa. Tila on pohjaratkaisultaan pääosin avoin, joten kommunikointi täällä sujuu helposti. Oma taukokeittiö muodostaa toimiston sydämen, jossa on mukava tavata kollegoita. Tilassa on omat wc:t.
Kutojantie 11 on viisikerroksinen toimistorakennus Espoon Kilossa. Vuokrattavat tilat ovat tehokkaita ja niitä voidaan muokata avo- tai huonekonttoreiksi tai niiden yhdistelmiksi. Kiinteistön vuokralaiset voivat vuokrara pienvarastotilaa kellarikerroksesta. Mahdollinen tavaraliikenne kerroksiin sujuu erillisellä tavarahissillä. Kiinteistön ylimmässä kerroksessa on saunaosasto neuvottelutiloineen.
Me Croisettella autamme teitä löytämään teille parhaat tilat! Olemme puolueettomia asiantuntijoita ja tunnemme toimitilamarkkinat, talot sekä tilat vankalla kokemuksella. Meillä on välityksessä kaikki toimitilat ja tiedämme niiden alustavat vuokratasot.
Tehtävämme on tehdä toimitilahaustanne onnistunut ja helppo. Saamme palkkiomme kiinteistönomistajalta, joten sinulle palvelumme on täysin maksuton.
Hissi
Croisette Real Estate Partner
Erottajankatu 5 A 6, 00130 Helsinki
Näytä puhelinnumero
+358 400 585 857
Croisette Vuokraus
Näytä puhelinnumero
+358400585857
