Vuokrataan toimistotilat - Helsinki
Opus Business Park - Opus 1, Hitsaajankatu 24, Herttoniemi, 00810 Helsinki #10808209
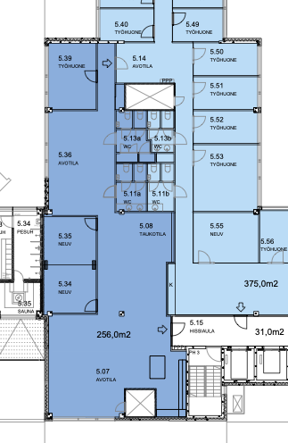
Tyylikäs ja valoisa, 256 m² toimisto Opus 1-talosta, Herttoniemen Opus Business Parkista
Osoite
Hitsaajankatu 24, 00810 Helsinki
Tilatyyppi
Toimistotilaa
256 m2
Pohjapiirros
Kiinteistö
Opus Business Parkin 5. kerroksessa vapaana valoisa 256 m² toimistotila. Kiinteistön monipuoliset palvelut ja keskeinen sijainti Helsingin Herttoniemessä helpottavat arkea. Aulapalvelu, lounasravintola ja kuntosali ovat muutamia esimerkkejä tarjolla olevista palveluista. Kiinteistö sijaitsee erinomaisella paikalla, kauppakeskus Hertsin välittömässä läheisyydessä.
Opus Business Park 1 on yrityksille loistava paikka toimia suurimpien ruuhka-alueiden ulkopuolella ja helposti saavutettavissa, Itäväylän varrella, aivan metroaseman lähettyvillä. Yrityspuiston kolme rakennusta sijoittuvat kodikkaasti rakentuvaa Hertsin lähipalvelukeskusta vastapäätä sekä Herttoniemen alueen kaikkien palveluiden, asutuksen ja yhteyksien keskelle.
Opus Business Park 1 on yrityksille loistava paikka toimia suurimpien ruuhka-alueiden ulkopuolella ja helposti saavutettavissa, Itäväylän varrella, aivan metroaseman lähettyvillä. Yrityspuiston kolme rakennusta sijoittuvat kodikkaasti rakentuvaa Hertsin lähipalvelukeskusta vastapäätä sekä Herttoniemen alueen kaikkien palveluiden, asutuksen ja yhteyksien keskelle.
Vapautuu
Heti
Kerros
5 / 5
Energiatehokkuusluokka
Ei lain edellyttämää energiatodistusta
Ympäristöluokitus
BREEAM In-Use Very Good
Näkyvällä paikalla
Hissi
Ota yhteyttä
ScanReal Oy LKV
Opus Business Park
Hitsaajankatu 24
00810 Helsinki
info@scanreal.fi
Puh:
Näytä puhelinnumero
020 730 8830
Sopivat toimitilat yhdellä otolla!
Kartoitamme toimitilatarpeesi ja etsimme yrityksellesi parhaiten sopivat vapaat toimitilat. Koska vuokranantajat maksavat palvelumme, on tämä yrityksellesi veloituksetonta.
OTA YHTEYTTÄ - SOVI NÄYTTÖ!
Kaikki kohteemme eivät ole netissä, kerro tilatarpeesi niin kartoitamme vaihtoehdot.
Palvelumme on tilanhakijalle ilmainen
Pyydä lisätietoa
