Vuokrataan toimistotilat - Helsinki
Opus Business Park - Opus 3, Hitsaajankatu 20, Herttoniemi, 00810 Helsinki #10808199
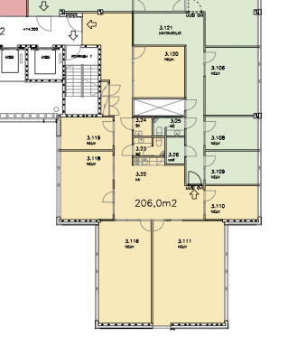
Tyylikäs kolmannen kerroksen monipuolinen 206 m² toimisto Opus 3-talosta, Herttoniemen Opus Business Parkista.
Osoite
Hitsaajankatu 20, 00810 Helsinki
Tilatyyppi
Toimistotilaa
206 m2
Pohjapiirros
Kiinteistö
Opus Business Parkin 3. kerroksessa loistava toimistotila. Tila taipuu moneksi, tarvittaessa laajeneekin. Tilassa useita huoneita, pieni avokeittiö ja omat wc-tilat.
Opus 3 -rakennus on osa Opus Business Parkia, joka sijaitsee Herttoniemessä vain 10 minuutin päässä itään Helsingin keskustasta.
Opus 3:een pääsee helposti autolla ja bussilla sekä metrolla, jonka lähin asema sijaitsee lyhyen kävelymatkan päässä. Autolla liikkuville löytyy pysäköintipaikkoja rakennuksessa sijaitsevasta pysäköintihallista.
Pohjakerroksessa on ruokakauppa ja yhteisiä tiloja, muu osa rakennuksesta on toimistokäytössä. Opus Business Park tarjoaa monia suosittuja palveluja ravintola- ja kokouspalveluiden lisäksi. Alueella on myös autopesu ja hammaslääkäri ja Opus Business Parkista on suora yhteys ruokakauppaan.
Ilmoituksen sisäkuvat ovat yleiskuvia kiinteistön eri tiloista.
Opus 3 -rakennus on osa Opus Business Parkia, joka sijaitsee Herttoniemessä vain 10 minuutin päässä itään Helsingin keskustasta.
Opus 3:een pääsee helposti autolla ja bussilla sekä metrolla, jonka lähin asema sijaitsee lyhyen kävelymatkan päässä. Autolla liikkuville löytyy pysäköintipaikkoja rakennuksessa sijaitsevasta pysäköintihallista.
Pohjakerroksessa on ruokakauppa ja yhteisiä tiloja, muu osa rakennuksesta on toimistokäytössä. Opus Business Park tarjoaa monia suosittuja palveluja ravintola- ja kokouspalveluiden lisäksi. Alueella on myös autopesu ja hammaslääkäri ja Opus Business Parkista on suora yhteys ruokakauppaan.
Ilmoituksen sisäkuvat ovat yleiskuvia kiinteistön eri tiloista.
Vapautuu
Heti
Rakennusvuosi
2006
Kerros
3 / 5
Energiatehokkuusluokka
Ei lain edellyttämää energiatodistusta
Ympäristöluokitus
BREEAM In-Use Very Good
Näkyvällä paikalla
Hissi
Ota yhteyttä
ScanReal Oy LKV
Opus Business Park
Hitsaajankatu 24
00810 Helsinki
info@scanreal.fi
Puh:
Näytä puhelinnumero
020 730 8830
Sopivat toimitilat yhdellä otolla!
Kartoitamme toimitilatarpeesi ja etsimme yrityksellesi parhaiten sopivat vapaat toimitilat. Koska vuokranantajat maksavat palvelumme, on tämä yrityksellesi veloituksetonta.
OTA YHTEYTTÄ - SOVI NÄYTTÖ!
Kaikki kohteemme eivät ole netissä, kerro tilatarpeesi niin kartoitamme vaihtoehdot.
Palvelumme on tilanhakijalle ilmainen
Pyydä lisätietoa
