Vuokrataan liiketilat, tuotantotilat, varastotilat - Nokia
Pirkkalaistori 1, Keskusta, 37100 Nokia #10808174
Iso ja monikäyttöinen kellaritila Nokian keskustassa
Osoite
Pirkkalaistori 1, 37100 Nokia
Tilatyyppi
Liiketilaa
1000 m2
Tuotantotilaa
1000 m2
Varastotilaa
1000 m2
Yhteensä
1000 m2
Kiinteistö
Vuokrataan Nokian keskustasta monikäyttöistä kellaritilaa!
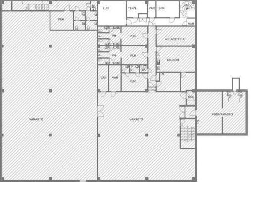
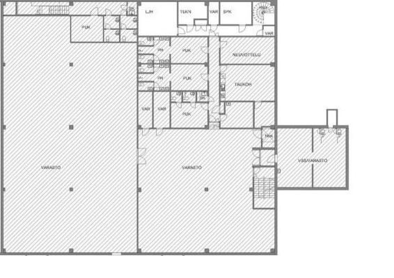
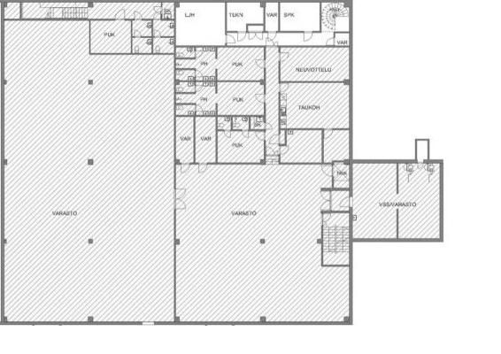
Tilan koko on noin 1000 m². Kyseessä on kellarikerroksen tila, joka koostuu pääosin avotilasta. Sen lisäksi tilasta löytyy runsaasti sosiaalitilaa.
Tilaan on tällä hetkellä yksi sisäänkäynti, mutta mahdollisuus toiseen kulkuun on myös torin puolelta. Tilaan tulee tavarahissi.
Sopii kevyeen varastointiin tai vaikka liikuntatilaksi.
Logistila on valtakunnallisesti paikallinen toimitilavälittäjä, joka tuntee alueesi tilatarjonnan. Ota yhteyttä, niin löydämme sinulle sopivan ratkaisun. Palvelumme on tilanhakijalle aina maksuton.
Tilan koko on noin 1000 m². Kyseessä on kellarikerroksen tila, joka koostuu pääosin avotilasta. Sen lisäksi tilasta löytyy runsaasti sosiaalitilaa.
Tilaan on tällä hetkellä yksi sisäänkäynti, mutta mahdollisuus toiseen kulkuun on myös torin puolelta. Tilaan tulee tavarahissi.
Sopii kevyeen varastointiin tai vaikka liikuntatilaksi.
Logistila on valtakunnallisesti paikallinen toimitilavälittäjä, joka tuntee alueesi tilatarjonnan. Ota yhteyttä, niin löydämme sinulle sopivan ratkaisun. Palvelumme on tilanhakijalle aina maksuton.
Vapautuu
Kysy
Kerros
kellarikerros
Ota yhteyttä
LogisTila Oy
Kauppakatu 14, 33210 TAMPERE
Tuomas Lehtinen
Näytä puhelinnumero
044 491 5961
Pyydä lisätietoa
