Vuokrataan toimistotilat - Helsinki
Tynnyrintekijäntie 1, Kalasatama, 00580 Helsinki #10808149
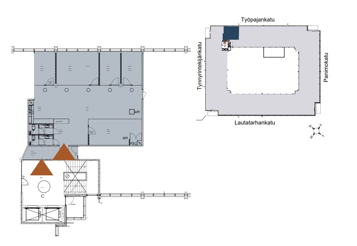
Vuokrataan hiljattain remontoitu, tehokas toimistotila Troolin C-rapussa. Tässä näppärän kokoisessa toimistossa on avotilan lisäksi 4 erikokoista työhuonetta ja neuvotteluhuone. Keittiönurkkaus, sisäänkäynti ja WC:t sijaitsevat omassa kulmassaan. Ikkunat avautuvat pohjoiseen kadulle.
Kalastaman Trooli kiinteistössä vuokralaisia palvelee aulapalvelu ja kiinteistöstä löytyy vuokrattavia neuvottelutiloja, lounasravintola, pyöräparkki ja kuntosali.
Erittäin hyvä sijainti aivan Kalasataman metroaseman vieressä. Autoilijoille löytyy paikkoja talon parkkihallista ja Redin palvelut ovat kävelyetäisyydellä. Metrolle sekä raitiovaunu- ja bussipysäkille on kävelymatka.
Lisätietoja soita 020 730 4530 tai info@repoint.fi. Palvelumme on tilanhakijalle ilmainen.
Repoint Toimitilat Oy
Itälahdenkatu 22 B, 00210 Helsinki
Näytä puhelinnumero
020 730 4530
Lisätietoja soita Näytä puhelinnumero 020 730 4530 tai info@repoint.fi
https://repoint.fi/