Vuokrataan toimistotilat - Helsinki
The Front, Karvaamokuja 2 A, Pitäjänmäki, 00380 Helsinki #10808101
Moderni 188,5 m² toimisto upeassa, ajattoman tyylikkäässä yrityspuistossa Pitäjänmäellä
Osoite
Karvaamokuja 2 A, 00380 Helsinki
Tilatyyppi
Toimistotilaa
188,5 m2
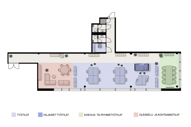
Pohjapiirros
Kiinteistö
Tämä 188,5 m² kokoinen tila on muunneltavissa täysin käyttäjänsä tarpeiden mukaan.
The Front tarjoaa vuokralaisilleen premium-tason tilaratkaisuja, jotka tekevät työarjesta sujuvampaa, insiroivampaa ja viihtyisämpää. Täyden palvelun konsepti vapauttaa aikaa tärkeimpään - ja antaa tilaa oivalluksille jotka vievät eteenpäin.
The Front edustaa Pitäjänmäen moderneinta toimitilakeskittymää, jossa laadukkaat talon sisäiset palvelut helpottavat arjen rullaamista. Kiinteistössä on tarjolla muun muassa vertaansa vailla oleva aulapalvelu, siivouspalvelut, lounasravintola sekä vapaasti varattavissa oleva neuvottelukeskus tarjoilutilauksineen ja paljon kaikkea muuta! Kiinteistö on vaivattomien kulkuyhteyksien päässä, ja talon alta löytyvästä pysäköintihallista löytyy sähköautojen latauspisteet sekä autonpesupalvelu autolla liikkuville työntekijöille.
The Frontissa työ ja hyvinvointi kulkevat käsi kädessä. Keilausta tai dartsia aftreille? Sykähdyttävä tiimipäivä seikkailupuistossa? The Front varmistaa viihtyvyyden myös silloin kun päivän työt on hoidettu.
The Front asettaa vastuullisuuden paalupaikalle kaikessa toiminnassa. Toimitilat on suunniteltu kestävän kehityksen mukaisesti, edistäen sekä sosiaalista että ekologista vastuullisuutta.
The Front sijaitsee Pitäjänmäen parhaimmalla paikalla, vain 3 min kävelymatkan päässä Haagan liikenneympyrästä. Lähimmälle bussipysäkille matkaa 2 min ja pikaratikkapysäkille 5 min. Huopalahden juna-asemalle kävelee reilussa 10 minuutissa!
Ilmoituksen sisäkuvat ovat yleiskuvia kiinteistön eri tiloista.
The Front tarjoaa vuokralaisilleen premium-tason tilaratkaisuja, jotka tekevät työarjesta sujuvampaa, insiroivampaa ja viihtyisämpää. Täyden palvelun konsepti vapauttaa aikaa tärkeimpään - ja antaa tilaa oivalluksille jotka vievät eteenpäin.
The Front edustaa Pitäjänmäen moderneinta toimitilakeskittymää, jossa laadukkaat talon sisäiset palvelut helpottavat arjen rullaamista. Kiinteistössä on tarjolla muun muassa vertaansa vailla oleva aulapalvelu, siivouspalvelut, lounasravintola sekä vapaasti varattavissa oleva neuvottelukeskus tarjoilutilauksineen ja paljon kaikkea muuta! Kiinteistö on vaivattomien kulkuyhteyksien päässä, ja talon alta löytyvästä pysäköintihallista löytyy sähköautojen latauspisteet sekä autonpesupalvelu autolla liikkuville työntekijöille.
The Frontissa työ ja hyvinvointi kulkevat käsi kädessä. Keilausta tai dartsia aftreille? Sykähdyttävä tiimipäivä seikkailupuistossa? The Front varmistaa viihtyvyyden myös silloin kun päivän työt on hoidettu.
The Front asettaa vastuullisuuden paalupaikalle kaikessa toiminnassa. Toimitilat on suunniteltu kestävän kehityksen mukaisesti, edistäen sekä sosiaalista että ekologista vastuullisuutta.
The Front sijaitsee Pitäjänmäen parhaimmalla paikalla, vain 3 min kävelymatkan päässä Haagan liikenneympyrästä. Lähimmälle bussipysäkille matkaa 2 min ja pikaratikkapysäkille 5 min. Huopalahden juna-asemalle kävelee reilussa 10 minuutissa!
Ilmoituksen sisäkuvat ovat yleiskuvia kiinteistön eri tiloista.
Vapautuu
Heti
Rakennusvuosi
2019
Kerros
4 / 7
Energiatehokkuusluokka
C2007
Näkyvällä paikalla
Hissi
Ota yhteyttä
ScanReal Oy LKV
Opus Business Park
Hitsaajankatu 24
00810 Helsinki
info@scanreal.fi
Puh:
Näytä puhelinnumero
020 730 8830
Sopivat toimitilat yhdellä otolla!
Kartoitamme toimitilatarpeesi ja etsimme yrityksellesi parhaiten sopivat vapaat toimitilat. Koska vuokranantajat maksavat palvelumme, on tämä yrityksellesi veloituksetonta.
OTA YHTEYTTÄ - SOVI NÄYTTÖ!
Kaikki kohteemme eivät ole netissä, kerro tilatarpeesi niin kartoitamme vaihtoehdot.
Palvelumme on tilanhakijalle ilmainen
Pyydä lisätietoa
