Vuokrataan toimistotilat - Helsinki
Malminkaari 23, Malmi, 00700 Helsinki #10807926
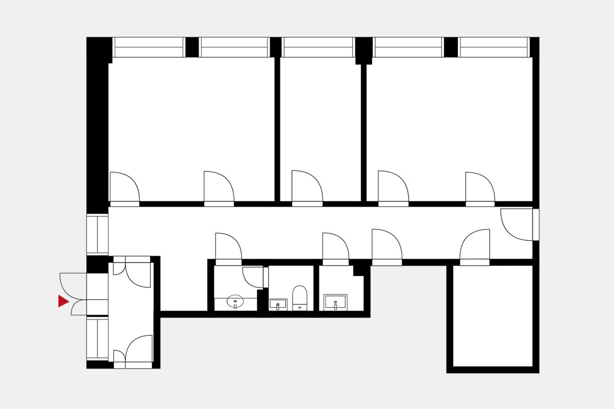
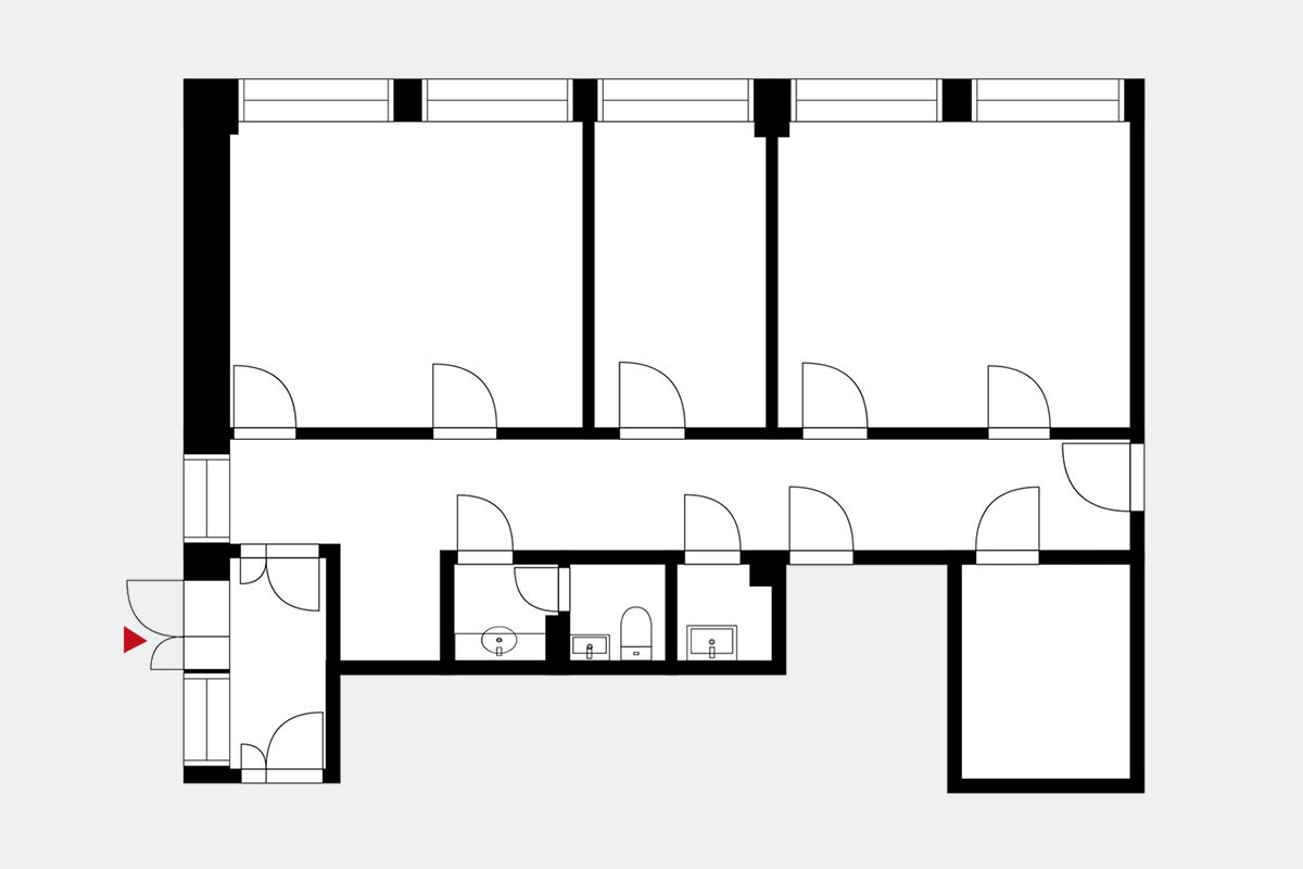
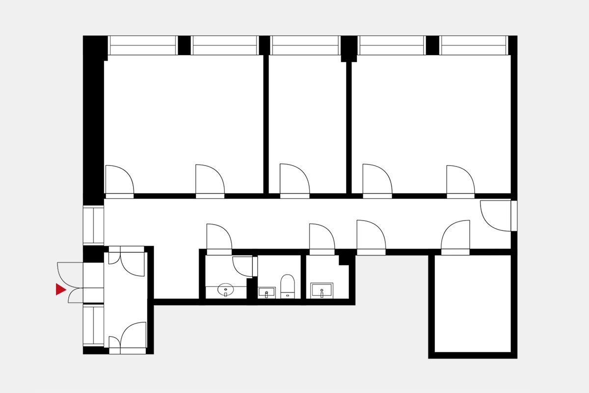
Ensimmäisen kerroksen edullinen toimisto rauhallisella pohjaratkaisulla. Tilassa on neljä huonetta sekä wc. Minikeittiö rakennetaan tarvittaessa.
Malminkaari 23 on monipuolinen toimistokiinteistö loistavalla sijainnilla Malmin palveluiden äärellä. Vuokralaisten käytössä on vuokrattavia neuvottelu- ja opetustiloja sekä sauna ja suihkuosasto pukeutumishuoneineen. Kiinteistöllä on parkkihalli, josta voi vuokrata tarvittavat pysäköintipaikat. Kiinteistö sijaitsee näkyvällä ja helposti saavutettavalla paikalla Malmin keskusta-alueen pohjoislaidalla. Alueen monipuoliset palvelut ja Malmin asema sijaitsevat vain muutaman minuutin kävelymatkan päässä.
Me Croisettella autamme teitä löytämään teille parhaat tilat! Olemme puolueettomia asiantuntijoita ja tunnemme toimitilamarkkinat, talot sekä tilat vankalla kokemuksella. Meillä on välityksessä kaikki toimitilat ja tiedämme niiden alustavat vuokratasot.
Tehtävämme on tehdä toimitilahaustanne onnistunut ja helppo. Saamme palkkiomme kiinteistönomistajalta, joten sinulle palvelumme on täysin maksuton.
Hissi
Croisette Real Estate Partner
Erottajankatu 5 A 6, 00130 Helsinki
Näytä puhelinnumero
+358 400 585 857
Croisette Vuokraus
Näytä puhelinnumero
+358400585857
