Vuokrataan toimistotilat - Helsinki
Kaikukatu 3A, Kallio, 00530 Helsinki #10807729
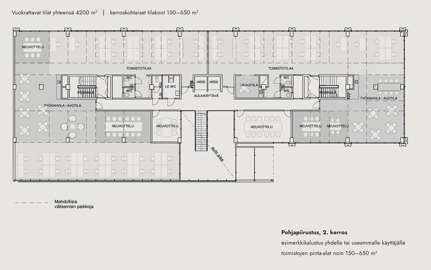
Nyt vapautuu ainutlaatuiset toimitilat Helsingin Kalliossa! Tämä täysin remontoitu rakennus kunnioittaa japanilaista tyyliä ja tarjoaa modernit sekä avarat toimitilat vuokralaiselle. Koko rakennus on tällä hetkellä tyhjä, joten tämän saman toimitilan voi saada joko 1 tai 2-kerroksesta. Tiloissa on suuret lattiasta kattoon ulottuvat ikkunat, ja lopulliset viimeistelyt voidaan räätälöidä vuokralaisen toiveiden mukaan. Tässä tilassa yhdistyy avaruus ja joustavuus: tilaa on runsaasti, mutta se voidaan myös jakaa pienempiin osiin yrityksen tarpeiden mukaan. Tilassa on lisäksi wc-tilat ja taukohuone työkeittiöllä. Kiinteistön toimitilat vaihtelevat koosta 150–650 m² välillä.
Kiinteistön upouusia toimitiloja löytyy kokoluokassa 150-650 m2. Rakennuksen kerrokset voidaan muokata helposti 1-4 toimijan käyttöön, ja toimisto- sekä neuvotteluhuoneita voidaan rakentaa tarpeen mukaan. Havainnekuvista saatte hyvän käsityksen rakennuksen sekä tilojen tunnelmasta, ja esimerkkipohjista voit tutkia mahdollisia tilajakoja.
Kiinteistön katutasossa etsitään laadukasta ravintolatoimijaa. Työmatkapyöräilijöille on tarjolla esteettömät suihku- ja pukuhuonetilat sekä kätevä kuivatushuone vaatteille. Polkupyöräparkit sijaitsevat rauhallisella sisäpihalla pääoven vieressä. Rakennuksessa on myös vuokrattavia neuvotteluhuoneita ja erillisiä varastotiloja.
Me Croisettella autamme teitä löytämään teille parhaat tilat! Olemme puolueettomia asiantuntijoita ja tunnemme toimitilamarkkinat, talot sekä tilat vankalla kokemuksella. Meillä on välityksessä kaikki toimitilat ja tiedämme niiden alustavat vuokratasot.
Tehtävämme on tehdä toimitilahaustanne onnistunut ja helppo. Saamme palkkiomme kiinteistönomistajalta, joten sinulle palvelumme on täysin maksuton.
Hissi
Croisette Real Estate Partner
Erottajankatu 5 A 6, 00130 Helsinki
Näytä puhelinnumero
+358 400 585 857
Croisette Vuokraus
Näytä puhelinnumero
+358400585857
