Vuokrataan toimistotilat - Helsinki
Valimotie 1, Pitäjänmäki, 00380 Helsinki #10807704
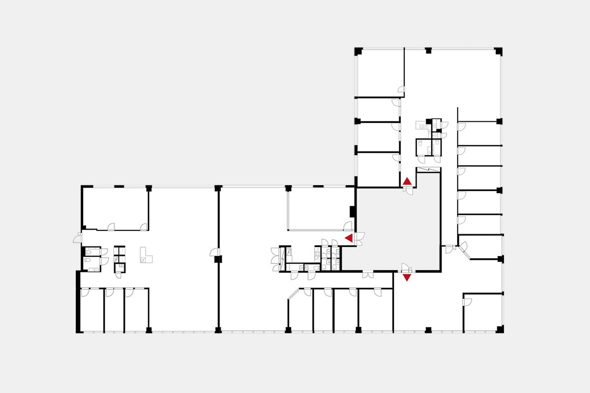
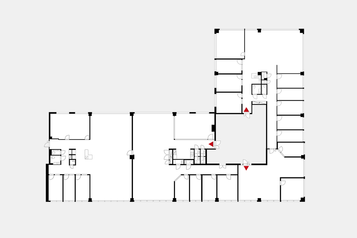
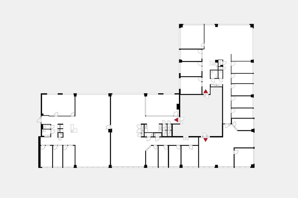
Toisen kerroksen tilava toimistokokonaisuus. Tila on jaettavissa pienempiin kokonaisuuksiin 3-4 käyttäjälle. Tilassa on avokonttoria sekä työ- ja neuvotteluhuoneita. Tilaan on mahdollista toteuttaa myös toiminnallisia ja visuaalisia muutostöitä tulevan vuokralaisen toiveiden mukaan. Ilmoituksen kuvat ovat esimerkkikuvia talon muista tiloista.
Pitäjänmäen yritysalueella sijaitseva Valimo 1 tarjoaa muuntojoustavaa ja tehokasta toimistotilaa suuremmankin yrityksen tarpeisiin. Toimistotalo Valimo 1 on saanut julkisivuunsa modernin verhoilun, ja myös sisäänkäynti sekä aula opasteineen on uusittu vastikään. Läpitalon tiloissa lattiasta kattoon ulottuvat lasiseinät päästävät luonnonvalon kulkemaan koko tilan halki. Käytännölliset pohjaratkaisut sallivat sekä keskittymistä vaativan työnteon että työyhteisön kohtaamiset keskelle aukeavassa sydäntilassa.
Kiinteistöllä palvelee lounasravintola, jonka yhteydessä on varattavissa oleva neuvottelutila. Työmatkapyöräilijöitä kiinteistöllä palvelevat sosiaalitilat sekä turvalliset polkupyörien säilytystilat. Valimotien bussipysäkillä pysähtyvät lukuisat Helsingin, Espoon ja Vantaan välillä liikennöivät linjat. Raiteita pitkin Valimotielle pääsee niin lähijunalla, kuin uudella Raide-jokerillakin. Talossa on myös lastauslaituri sekä tavarahissi.
Me Croisettella autamme teitä löytämään teille parhaat tilat! Olemme puolueettomia asiantuntijoita ja tunnemme toimitilamarkkinat, talot sekä tilat vankalla kokemuksella. Meillä on välityksessä kaikki toimitilat ja tiedämme niiden alustavat vuokratasot.
Tehtävämme on tehdä toimitilahaustanne onnistunut ja helppo. Saamme palkkiomme kiinteistönomistajalta, joten sinulle palvelumme on täysin maksuton.
Hissi
Croisette Real Estate Partner
Erottajankatu 5 A 6, 00130 Helsinki
Näytä puhelinnumero
+358 400 585 857
Croisette Vuokraus
Näytä puhelinnumero
+358400585857
