Vuokrataan toimistotilat - Jyväskylä
Vuokrataan 468 m2 katutason toimistotila hyvällä sijainnilla Jyväskylän keskustasta, Gummeruksenkatu 3 / Vapaudenkatu 28, 40100 Jyväskylä #10807693
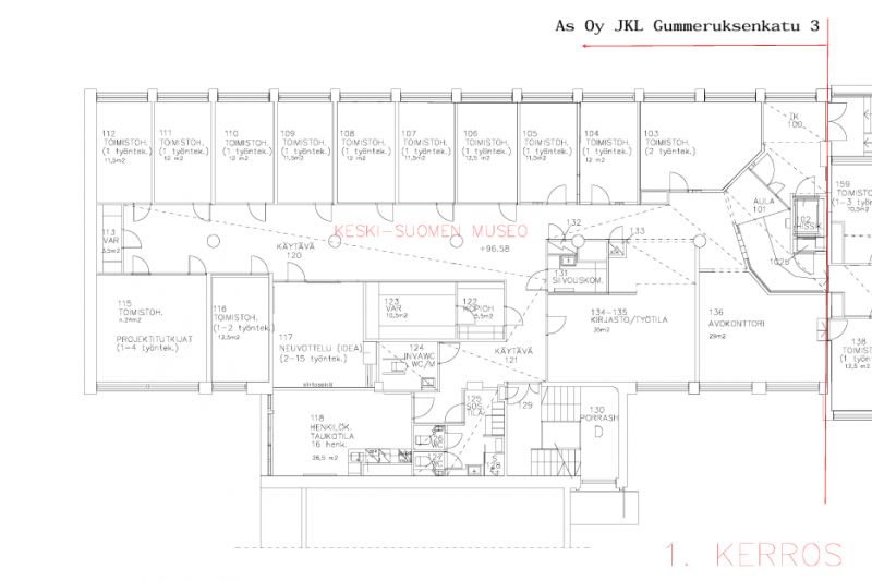
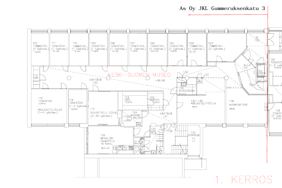
Vuokrataan 468m2 toimistotilaa hyvältä paikalta Jyväskylän keskustasta, Vapaudenkadun katutasosta. Ensimmäisen kerroksen toimistotiloissa on 13 työhuonetta, joiden koko vaihtelee välillä 11,5 - 24m2 sekä avokonttoritilaa noin 29m2. Neuvotteluhuoneessa on tilaa 2-15 henkilölle, ja tiloihin kuuluu myös kirjasto / työtila n. 35 m2. Sen lisäksi kokonaisuuteen kuuluu keittiö ja taukotila, sosiaalitila sekä 3 kpl WC (1 kpl Inva). Tiloissa on myös kaksi varastoa (10,5 ja 3,5 m2) sekä kopiohuone 5,5m2 ja siivouskomero.
Kiinteistöön on esteetön kulku ja mahdollisuus vuokrata autopaikkoja vapaan tilanteen mukaan. Toimistotilojen ikkunat ovat Vapaudenkadulle ja Jyväsjärven suuntaan. Koneellinen, jäähdyttävä ilmanvaihto. Vuokrataan ensisijaisesti yhdelle käyttäjälle, mutta jakamisesta voidaan neuvotella. Siistiä / peruskuntoista toimistotilaa, jota voidaan remontoida ja muokata käyttäjän tarpeiden mukaan. Tiloihin kulku ja käyttö 24/7. Kiinteistössä on myös hissi.
Rautatieasemalle matkaa noin 900 metriä
Katutasossa
Näkyvällä paikalla
Aveon Real Estate Oy
Kauppakatu 18 C 26, 40100 Jyväskylä
Henri Kumpulainen
Puh.
Näytä puhelinnumero
040 864 3631
henri.kumpulainen@aveon.fi
Olemme kiinteistöliiketoiminnan asiantuntija, joka toimii yrittäjämäisesti neuvonantajana kiinteistökaupoissa, toimitilavälittämisessä sekä kiinteistökehityksessä.
Asiakkaitamme ovat kotimaiset ja ulkomaiset kiinteistönomistajat, -sijoittajat sekä tilojen käyttäjät kaikkialla Suomessa.
