Vuokrataan tuotantotilat - Tampere
Hyllilänkatu 1, Hankkio, 33730 Tampere #10807576
Osoite
Hyllilänkatu 1, 33730 Tampere
Tilatyyppi
Tuotantotilaa
2100 m2
Muuta
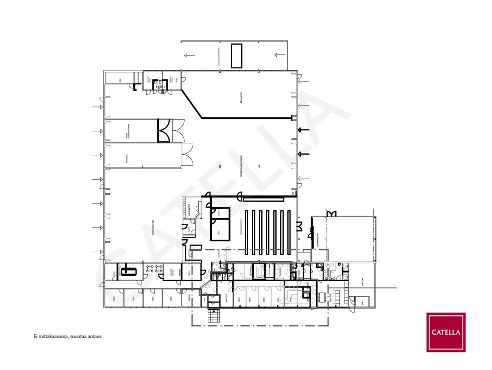
Vuokrataan tuotanto- ja varastotilaa Hankkiosta.
Hallitilaa noin 1.600 m2 ja toimisto- ja sos.tilaa noin 500 m2. Iso piha, tontin pinta-ala noin 20.000 m2. Tontti on asfaltoitu ja aidattu.
Hallin vapaa korkeus on noin 4,5 m kantavaan palkkiin. Hallitilaan johtaa nosto- ja taiteovia. Hallitila on jaettu väliseinärakenteilla osastoihin ja tilassa on mm. pesuhalli. Lisäksi toimisto- ja sosiaalitilat sekä varastokatos.
Lämmitys kaukolämmöllä. Kiertoilmapuhaltimet hallitiloissa ja vesikiertoiset patterit toimistotiloissa. Koneellinen ilmanvaihto.
Kysy lisää ja sovi näyttö!
Sami Saraste
Myyntipäällikkö, LKV
sami.saraste@catella.com
050 3014 455
Tilanhakijalle palvelumme ovat maksuttomia.
Catella Property Oy on valtakunnallinen toimitilojen vuokraukseen ja myyntiin keskittynyt kiinteistönvälitysyritys.
Kysy paikallisilta ammattitaitoisilta välittäjiltämme myös muita välityksessämme olevia toimitilakohteita.
Välittäjiemme yhteystiedot ja lisää välitettäviä tilakohteita verkkosivuillamme: www.toimitilat.catella.fi.
Ota yhteyttä!
Hallitilaa noin 1.600 m2 ja toimisto- ja sos.tilaa noin 500 m2. Iso piha, tontin pinta-ala noin 20.000 m2. Tontti on asfaltoitu ja aidattu.
Hallin vapaa korkeus on noin 4,5 m kantavaan palkkiin. Hallitilaan johtaa nosto- ja taiteovia. Hallitila on jaettu väliseinärakenteilla osastoihin ja tilassa on mm. pesuhalli. Lisäksi toimisto- ja sosiaalitilat sekä varastokatos.
Lämmitys kaukolämmöllä. Kiertoilmapuhaltimet hallitiloissa ja vesikiertoiset patterit toimistotiloissa. Koneellinen ilmanvaihto.
Kysy lisää ja sovi näyttö!
Sami Saraste
Myyntipäällikkö, LKV
sami.saraste@catella.com
050 3014 455
Tilanhakijalle palvelumme ovat maksuttomia.
Catella Property Oy on valtakunnallinen toimitilojen vuokraukseen ja myyntiin keskittynyt kiinteistönvälitysyritys.
Kysy paikallisilta ammattitaitoisilta välittäjiltämme myös muita välityksessämme olevia toimitilakohteita.
Välittäjiemme yhteystiedot ja lisää välitettäviä tilakohteita verkkosivuillamme: www.toimitilat.catella.fi.
Ota yhteyttä!
Vapautuu
Heti vapaa
Ota yhteyttä
Catella Property Oy
Hämeenkatu 13b A, 33100 Tampere
Näytä puhelinnumero
010 5220 100
Sami Saraste
Näytä puhelinnumero
0503014455
Pyydä lisätietoa
