Myydään toimistotilat - Espoo
Piispankallio 4, 02200 Espoo #10807453
Todella mielenkiintoinen kohde sijoittajalle tai kehittäjälle!
Toimistohuoneisto, joka muutettavissa ja jaettavissa 3-4 asunnoksi!
Osoite
Piispankallio 4, 02200 Espoo
Tilatyyppi
Toimistotilaa
179 m2
Tilajako
Jaettavissa
Myyntihinta
410000
Kiinteistö
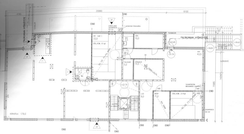
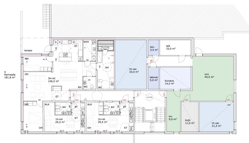
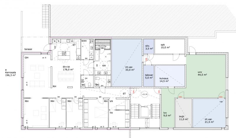
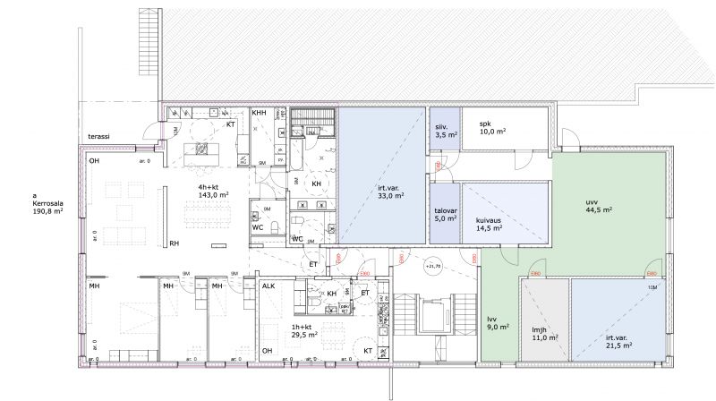
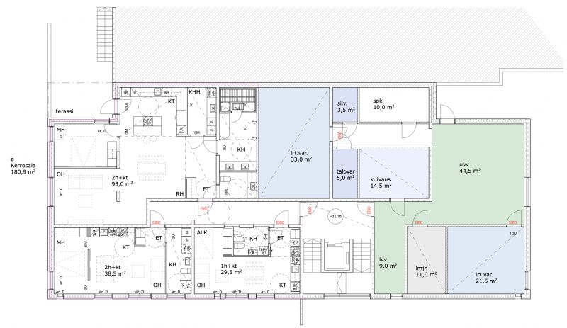
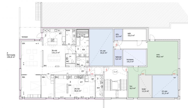
Sijoittajalle tai kiinteistökehittäjälle tilaisuus ostaa toimistohuoneisto, joka on muutettavissa myös esim. 1-4 asunnoksi. Alustavat arkkitehtiluonnokset jaosta laadittu, edellyttää myös yhtiöjärjestyksen muutosta.
Nykyinen vuokralainen voi tarvittaessa sopia 1-3 vuoden sopimuksen, joten tilassa vuokratuotto päällä lupaprosessin ajaksi.
Tila nykyisellään 179m2 suuruinen toimistokäytössä oleva huoneisto, käytännössä 3 kerroksen tontti. Rakennus sijaitsee rinteessä, joten kohteella on myös pihaterassi.
Soita ja pyydä tarkemmat tiedot vuokrauksesta!
Mahdollisuus lunastaa autopaikan tai useamman yhtiön parkkihallista.
Nykyinen vuokralainen voi tarvittaessa sopia 1-3 vuoden sopimuksen, joten tilassa vuokratuotto päällä lupaprosessin ajaksi.
Tila nykyisellään 179m2 suuruinen toimistokäytössä oleva huoneisto, käytännössä 3 kerroksen tontti. Rakennus sijaitsee rinteessä, joten kohteella on myös pihaterassi.
Soita ja pyydä tarkemmat tiedot vuokrauksesta!
Mahdollisuus lunastaa autopaikan tai useamman yhtiön parkkihallista.
Sijainti
Espoon Olari
Pysäköinti
Yhtiön pysäköintihalli, kadulla
Kulkuyhteydet
Metro, Bussi
Vuokralaisia
1
Vapautuu
Heti
Jaettavissa
Ota yhteyttä
Conorin
Toimitilojen vuokraus ja myynti
Näytä puhelinnumero
09 - 612 2230
Toimisto
Valimotie 17-19
Helsinki
Kaikki vapaat tilamme:
vapaat.toimitilat.fi/conorin
Pyydä lisätietoa
