Vuokrataan - Espoo
Keilasatama 5, Keilaniemi, 02150 Espoo #10807447
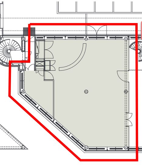
Vuokrattavana avara ja valoisa 1. kerroksen toimitila ( 157 m2) näyttävästä toimistotalosta Espoon Keilaniemestä. Läpitalon toimiston ikkunat ovat kahteen ilmansuuntaan.
Kiinteistö sijaitsee näkyvällä paikalla meren rannalla. Henkilöstöravintola, aulavastaanottopalvelu, kokouskeskus, kuntosali ja saunaosasto.
Erinomainen sijainti Kehä 1:n ja Länsiväylän vieressä takaa hyvät julkisen liikenteen palvelut. Lisäksi kohteessa ja sen välittömässä läheisyydessä on runsaasti pysäköintitilaa henkilökunnan käyttöön.
RHG Real Estate
Hämeenkatu 2 B20, 20500 Turku
Näytä puhelinnumero
020 734 4020
Heli Reinberg
Näytä puhelinnumero
040 647 4900
