Vuokrataan toimistotilat - Espoo
Revontulentie 7, Tapiola, 02100 Espoo #10807198
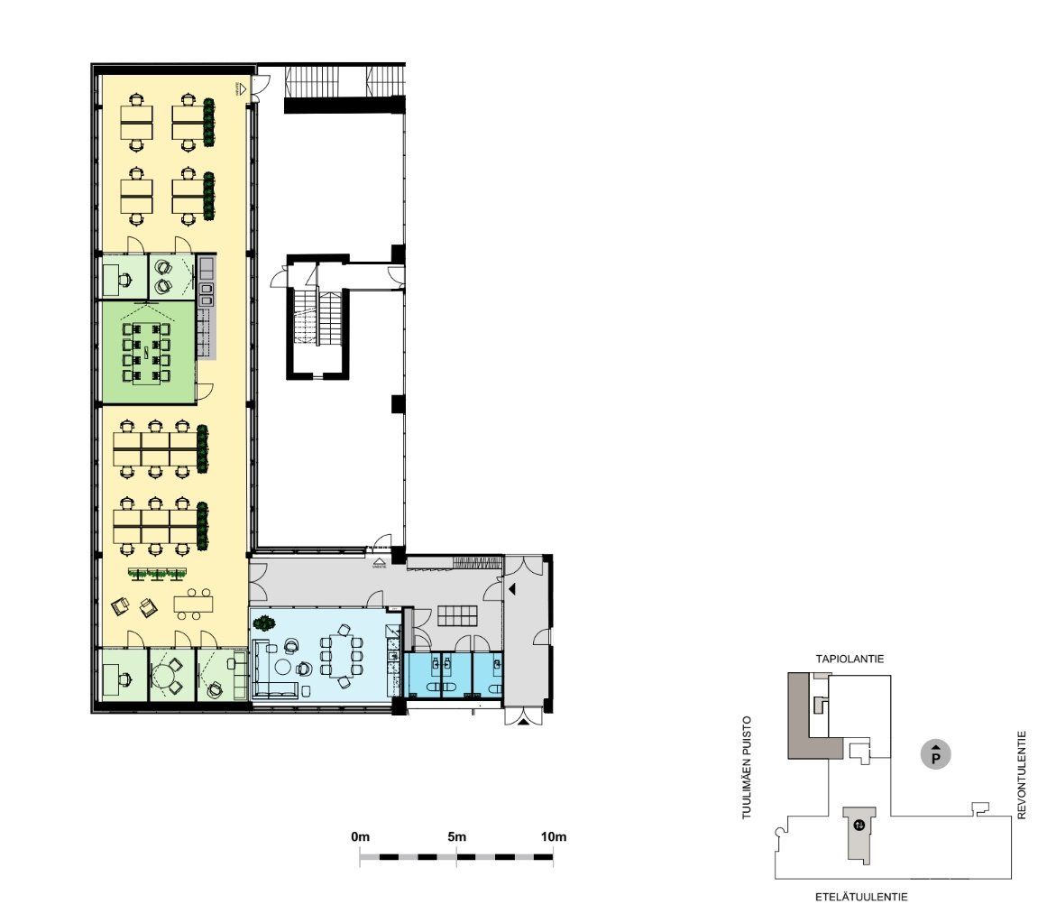
Kauniilla puistomaisemalle varustettu läpitalon muuttovalmis toimisto. Tila koostuu avokonttorista, jota täydentää viisi vetäytymistilaa sekä neuvotteluhuone. Neukkari jakaa avotoimiston kahteen erilliseen osioon sitä rauhoittaen. Tila on vuokrattavissa yhdessä myös 642 m2 tilan kanssa, jolloin muodostuu noin 1003 m2 toimistokokonaisuus.
Revontulentie 7 on merellisessä Tapiolassa kohoava moderni toimistoidylli täynnä yhteisöllisyyttä, mielenrauhaa ja mahdollisuuksia. Länsimetron varrella, Keilaniemen ja Otaniemen naapurissa sijaitseva Revontulentie 7 tarjoaa sinulle nykyaikaiset toimitilat, monipuoliset liikuntamahdollisuudet, sekä huippulaadukkaat palvelut, jotka nostavat yrityksesi hyvinvoinnin uudelle tasolle. Kiinteistöllä on aulapalvelu, neuvottelukeskus, kuntosali ja sauna uma-altaineen sekä lounasravintola ja catering-palvelu.
Me Croisettella autamme teitä löytämään teille parhaat tilat! Olemme puolueettomia asiantuntijoita ja tunnemme toimitilamarkkinat, talot sekä tilat vankalla kokemuksella. Meillä on välityksessä kaikki toimitilat ja tiedämme niiden alustavat vuokratasot.
Tehtävämme on tehdä toimitilahaustanne onnistunut ja helppo. Saamme palkkiomme kiinteistönomistajalta, joten sinulle palvelumme on täysin maksuton.
Hissi
Croisette Real Estate Partner
Erottajankatu 5 A 6, 00130 Helsinki
Näytä puhelinnumero
+358 400 585 857
Croisette Vuokraus
Näytä puhelinnumero
+358400585857
