Vuokrataan liiketilat, tuotantotilat, varastotilat - Helsinki
Mekaanikonkatu 5, Herttoniemi, 00880 Helsinki #10807157
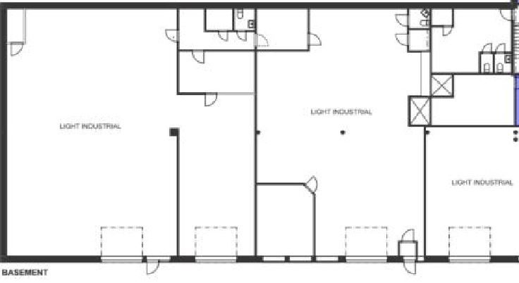
Keskeisellä sijainnilla Herttoniemen teollisuusalueella kätevä juuri remontoitu siisti kellarikerroksen/maantason varastotila jossa 4 kpl nosto-ovia. Useita lattiakaivoja ja uusitut LED-valot.
Tila soveltuu monipuoliseen käyttöön ja sisältää omat wc- ja pukeutumistilat. Kellari soveltuu hyvin esimerkiksi korjaamotilaksi. Tilan korkeus 2,7m mutta nosto-oven korkeus vain 2,2m.
Lisätiedot ja kohde-esittelyt 020 7290 710, lisää kohteita premises.fi
Kohteella ei ole lain edellyttämää energiatodistusta tai energialuokka ei tiedossa.Kerros: Maantaso
Osoite
Mekaanikonkatu 5, 00880 Helsinki
Tilatyyppi
Liiketilaa
610 m2
Tuotantotilaa
610 m2
Varastotilaa
610 m2
Yhteensä
610 m2
Kulkuyhteydet
Kiinteistö sijaitsee hyvällä paikalla herttoniemen teollisuusalueella, itä- väylän tuntumassa. Kiinteistöltä helppo kulkea keskustan ja itäkeskuksen suuntaan niin julkisilla kuin autollakin. Pääväylien saavutettavuus erinomainen.
Ota yhteyttä
CRE PREMISES
Puh. Näytä puhelinnumero 020 7290 710
Vantaankoskentie 14
01670 VANTAA
Pyydä lisätietoa
