Vuokrataan toimistotilat - Helsinki
Kumpulantie 3, Vallila, 00520 Helsinki #10807149
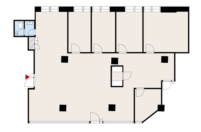
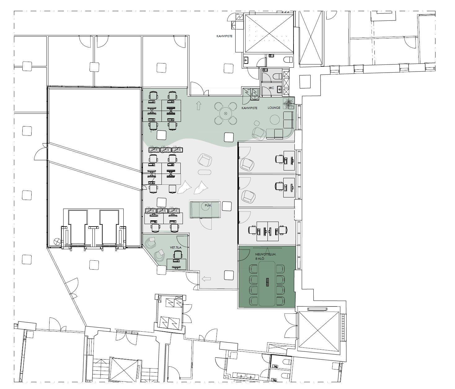
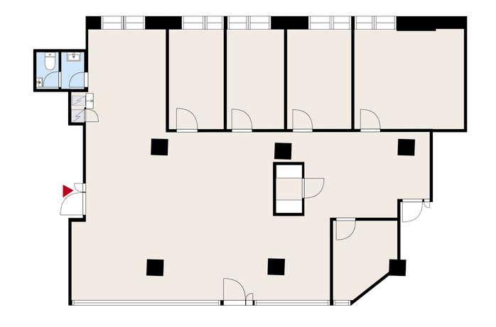
Huonetoimisto (8 kpl) sijaitsee Fabrik Studios -alueen vieressä. Yhteiskäyttöiset keittiö-lounge-(sisältää astiat, kahvin- ja vedenkeittimen) pientoimistoalueen kanssa. Yhteisten alueiden siivous, aulapalvelu sekä kuntosalin käyttöoikeus sisältyvät vuokraan.
Kiinteistöstä löytyy myös kaikki tarvittavat peruspalvelut, jotka tekevät yrityksen toimimisen kiinteistössä sujuvaksi. Kiinteistön logistiikka on hyvä ja tukee tilojen soveltuvuutta eri toimialoilla toimiville yrityksille. Rakennuksessa on kolme tavarahissiä, joilla on yhteys lastauslaiturilta kerroksiin. Tavarahissien kantavuudet ovat 1 000 ja 2 000 kg.
Rakennus on valmistunut vuonna 1969 ja saneerattu toimistokäyttöön. Kellarikerroksessa on vuokrattavissa varastotilaa. Lounasravintola tarjoaa useita lounasvaihtoehtoja sekä huolehtii tarvittaessa kokoustarjoiluista. Vuokralaisten henkilökunnan käytettävissä on veloitukseton kuntosali pukuhuoneineen.
Vallilan kehittyvä alue on mielenkiintoinen yhdistelmä uutta ja vanhaa, asuntoja ja työpaikkoja, kaupunkiympäristöä ja vehreyttä sopivassa suhteessa, Helsingin keskustan tuntumassa. Liikenneyhteydet Vallilasta on hyvät. Kaupunginosan kautta kulkee useita raitiovaunu- ja bussilinjoja ja Pasilan juna-asema sijaitsee kävelymatkan päässä.
Omalla autolla liikkuville kiinteistön lämpimässä autohallissa on runsaasti autopaikkoja. Polkupyörille on pyöräparkki sisäpihalla, ja pyöräilijöiden käytettävissä on kuntosalin sosiaalitilat.
Lisätiedot ja kohde-esittelyt 020 7290 710, lisää kohteita premises.fi
Kohteella ei ole lain edellyttämää energiatodistusta tai energialuokka ei tiedossa.Kerros: 3
CRE PREMISES
Puh. Näytä puhelinnumero 020 7290 710
Vantaankoskentie 14
01670 VANTAA
