Vuokrataan toimistotilat - Tampere
Haarlankatu 4, Onkiniemi, 33230 Tampere #10807004
Osoite
Haarlankatu 4, 33230 Tampere
Tilatyyppi
Toimistotilaa
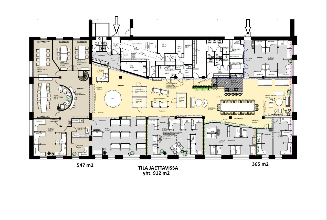
365 - 912 m2
Tilajako
Jaettavissa
Muuta
Onkiniemessä vapaana upea ja persoonallinen ylimmän kerroksen toimistotila. Näitä tulee harvoin vastaan!
Tampereen historiallinen Haarlan paperitehdaskiinteistö tarjoaa monipuolisia toimitiloja.Bertel Strömmerin suunnittelemassa tehdasrakennuksessa on toiminut v. 1920-1989 Kauppaneuvos Rafael Haarlan perustama Haarlan Paperitehdas Oy.
Tänä päivänä kiinteistö tarjoaa monipuolisia toimitiloja lukuisille eri alojen yrityksille. Tiloja on vuosien varrella remontoitu ja uudistettu ja siellä nykyaikaistetaan ja rakennetaan kokonaan uusia tiloja jatkuvasti.
Tämä punatiilinen kiinteistö sijaitsee heti Rantatunnelin länsipuolen tunnelin suulla ja sinne on erittäin hyvät kulkuyhteydet niin omalla autolla kuin ratikalla tai paikallisbussillakin. Pyöräilyreitti kulkee Näsijärven rannassa kiinteistölle. Keskustan ja Lielahden palveluihin on lyhyt matka, samoin kuin Särkänniemeen ja Santalahden puistoon. Paasikiven tien liikenne on erittäin vilkas ja näkyvyys kiinteistölle hyvä.
Pihassa on reilusti pysäköintitilaa. Peruspysäköintipaikat ovat ilmaisia kiinteistön vuokralaisille ja asiakkaille. Lämmitystolpallisia paikkoja on mahdollisuus vuokrata hyvin kohtuulliseen hintaan. Pihassa on myös sähköautoille latausmahdollisuus. Pihapiirin vanhassa kaarevassa pannuhuoneessa sijaitsee lounas-kahvio. Osaan kiinteistön tiloista on yhteys myös suurella tavarahissillä.
Vuokrattava tila:
F-rapun ylimmän kerroksen upea persoonallinen tila. Tällaista tilaa ei ihan heti tule toista vastaan! Upeaa punatiiliseinää, suuria kaari-ikkunoita, upeat näkymät. Tässä on Tamperelaista vanhaa teollisuushenkeä yhdistettynä tähän päivään. Tämä tila täytyy nähdä omin silmin.
Tilan koko on 912 m2 ja sen voi jakaa tarvittaessa kahdelle käyttäjälle (neliöt silloin n. 550 ja 370 m2).
Tila koostuu avotilasta, eri kokoisista ja -muotoisista huoneista, sosiaalitiloista, varastotilasta. Siellä on myös pieni parvi.
Ikkunat kolmeen suuntaan ja huikeat maisemat Pispalan suuntaan, Santalahteen ja Näsijärvelle.
Koneellinen ilmanvaihto ja jäähdytys, ovipuhelin ja rapussa hissi. Tila on mahdollista räätälöidä juuri teidän käyttöönne sopivaksi.
Ole yhteydessä, mennään tutustumaan paikan päälle.
Tilaa pääsee joustavasti katsomaan:
Annina Niemi
Myyntipäällikkö, LKV
annina.niemi@catella.com
040 4812 220
Tilanhakijalle palvelumme ovat maksuttomia.
Catella Property Oy on valtakunnallinen toimitilojen vuokraukseen ja myyntiin keskittynyt kiinteistönvälitysyritys.
Kysy paikallisilta ammattitaitoisilta välittäjiltämme myös muita välityksessämme olevia toimitilakohteita.
Välittäjiemme yhteystiedot ja lisää välitettäviä tilakohteita verkkosivuillamme: www.toimitilat.catella.fi.
Ota yhteyttä!
Tampereen historiallinen Haarlan paperitehdaskiinteistö tarjoaa monipuolisia toimitiloja.Bertel Strömmerin suunnittelemassa tehdasrakennuksessa on toiminut v. 1920-1989 Kauppaneuvos Rafael Haarlan perustama Haarlan Paperitehdas Oy.
Tänä päivänä kiinteistö tarjoaa monipuolisia toimitiloja lukuisille eri alojen yrityksille. Tiloja on vuosien varrella remontoitu ja uudistettu ja siellä nykyaikaistetaan ja rakennetaan kokonaan uusia tiloja jatkuvasti.
Tämä punatiilinen kiinteistö sijaitsee heti Rantatunnelin länsipuolen tunnelin suulla ja sinne on erittäin hyvät kulkuyhteydet niin omalla autolla kuin ratikalla tai paikallisbussillakin. Pyöräilyreitti kulkee Näsijärven rannassa kiinteistölle. Keskustan ja Lielahden palveluihin on lyhyt matka, samoin kuin Särkänniemeen ja Santalahden puistoon. Paasikiven tien liikenne on erittäin vilkas ja näkyvyys kiinteistölle hyvä.
Pihassa on reilusti pysäköintitilaa. Peruspysäköintipaikat ovat ilmaisia kiinteistön vuokralaisille ja asiakkaille. Lämmitystolpallisia paikkoja on mahdollisuus vuokrata hyvin kohtuulliseen hintaan. Pihassa on myös sähköautoille latausmahdollisuus. Pihapiirin vanhassa kaarevassa pannuhuoneessa sijaitsee lounas-kahvio. Osaan kiinteistön tiloista on yhteys myös suurella tavarahissillä.
Vuokrattava tila:
F-rapun ylimmän kerroksen upea persoonallinen tila. Tällaista tilaa ei ihan heti tule toista vastaan! Upeaa punatiiliseinää, suuria kaari-ikkunoita, upeat näkymät. Tässä on Tamperelaista vanhaa teollisuushenkeä yhdistettynä tähän päivään. Tämä tila täytyy nähdä omin silmin.
Tilan koko on 912 m2 ja sen voi jakaa tarvittaessa kahdelle käyttäjälle (neliöt silloin n. 550 ja 370 m2).
Tila koostuu avotilasta, eri kokoisista ja -muotoisista huoneista, sosiaalitiloista, varastotilasta. Siellä on myös pieni parvi.
Ikkunat kolmeen suuntaan ja huikeat maisemat Pispalan suuntaan, Santalahteen ja Näsijärvelle.
Koneellinen ilmanvaihto ja jäähdytys, ovipuhelin ja rapussa hissi. Tila on mahdollista räätälöidä juuri teidän käyttöönne sopivaksi.
Ole yhteydessä, mennään tutustumaan paikan päälle.
Tilaa pääsee joustavasti katsomaan:
Annina Niemi
Myyntipäällikkö, LKV
annina.niemi@catella.com
040 4812 220
Tilanhakijalle palvelumme ovat maksuttomia.
Catella Property Oy on valtakunnallinen toimitilojen vuokraukseen ja myyntiin keskittynyt kiinteistönvälitysyritys.
Kysy paikallisilta ammattitaitoisilta välittäjiltämme myös muita välityksessämme olevia toimitilakohteita.
Välittäjiemme yhteystiedot ja lisää välitettäviä tilakohteita verkkosivuillamme: www.toimitilat.catella.fi.
Ota yhteyttä!
Vapautuu
Vapaa
Kerros
3.
Jaettavissa
Ota yhteyttä
Catella Property Oy
Hämeenkatu 13b A, 33100 Tampere
Näytä puhelinnumero
010 5220 100
Annina Niemi
Näytä puhelinnumero
040 4812 220
Pyydä lisätietoa
