Vuokrataan toimistotilat - Helsinki
Esterinportti 2, Pasila, 00240 Helsinki #10806945
Toimistotilaa hyvällä paikalla Helsingin Pasilassa.
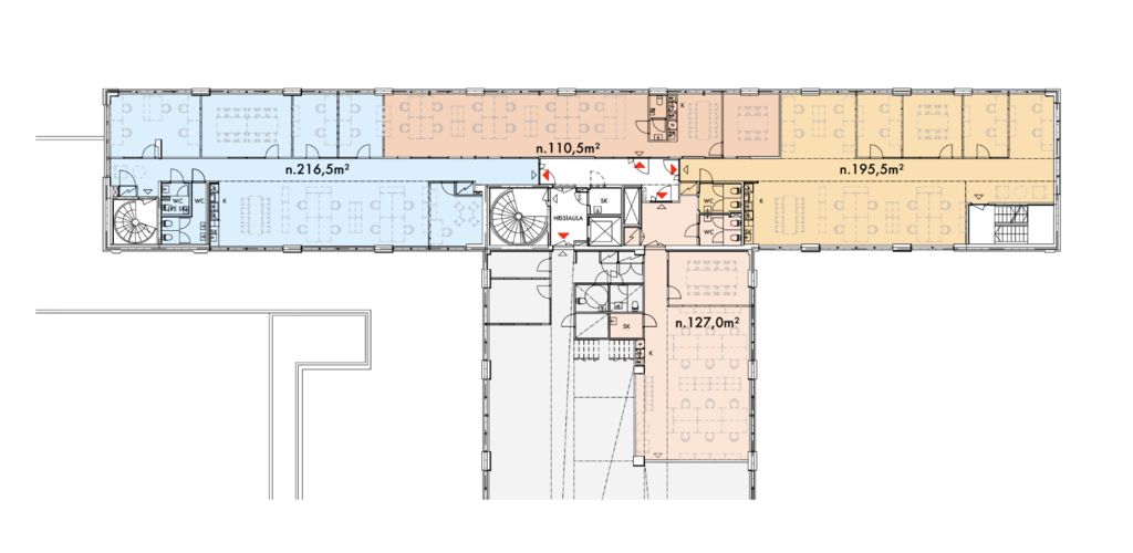
Tämä 127 m² toimistotila sijaitsee kiinteistön 5. kerroksessa C-rapussa. Tila on avotilaa, ja siinä on yksi neuvotteluhuone, oma wc ja keittiö. Tilaa on mahdollista muunnella vuokralaisen tarpeiden mukaan ja vuokralaisella on mahdollisuus vaikuttaa materiaalivalintoihin. Kuvat ovat yleiskuvia kiinteistön tiloista.
Esterinportti 2 on toimistokiinteistö, joka sijaitsee Länsi-Pasilassa vain kivenheiton päässä kauppakeskus Triplasta. Kiinteistössä on tasokas lounasravintola Factory. Julkiset liikenneyhteydet ovat erinomaiset.
Kysy lisää numerosta 044 723 4700 tai info@bref.fi. Palvelumme on tilanhakijoille ilmainen.
Hissi
Bureau Real Estate Finland Oy
Lars Sonckin kaari 16, 02600 Espoo
Näytä puhelinnumero
0447234700
Bureau Real Estate Finland Oy
https://www.bref.fi